Capannone via Fratelli Rosselli, Trezzano sul Naviglio
€ 3.000.000CAPANNONE DI 3000 MQ COMPRESI UFFICI - CORTILE PRIVATO
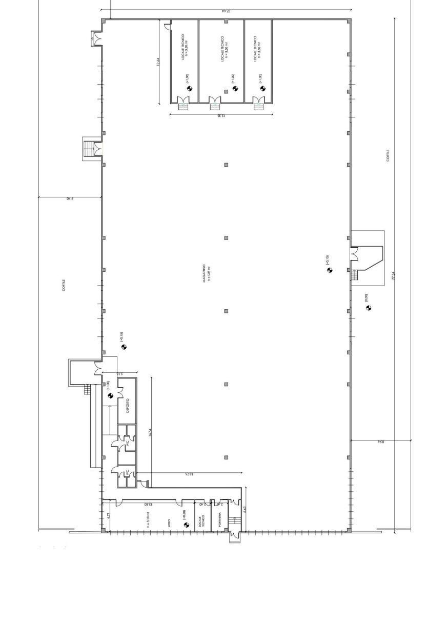
(CAPANNONE DI 3000 MQ COMPRESI UFFICI - CABINA DI TRASFORMAZIONE - CORTILE PRIVATO) La proprietà si trova nella zona industriale di Trezzano Sul Naviglio (MI), a pochi minuti dalla Strada Statale Vigevanese e dallo svincolo della tangenziale ovest. La superficie coperta è di circa 3000 mq con altezza sotto trave di 6,00 mt, comprensiva di uffici e servizi, oltre a cabina di trasformazione. Sul fronte è presente un ampia zona parcheggio a servizio dello stabile. Completa la proprietà il cortile privato e recintato posto sui 3 lati del capannone e servito da doppio carraio che permette l'entrate e l'uscita dei mezzi. SCOPRI ALTRE SOLUZIONI IMMOBILIARI SUL NOSTRO SITO WWW.CASAEINDUSTRIA.IT I nostri servizi: - Intermediazione immobiliare; - valutazioni per la locazione e la vendita di immobili; - stesura e registrazione contratti; - certificazioni energetiche; - finanziamenti su misura; - progettazione di edifici civili ed industriali; - calcoli strutture in cemento armato, legno e acciaio; - perizie, collaudi, asseverazioni statiche; - direzione lavori; - supervisione in cantiere nella fase di realizzazione; - assistenza alle imprese (tracciamenti planimetrici ed altimetrici, contabilità di cantiere); - computi metrici; - verifica dispersioni termiche degli edifici (L 10/91); - progetto impianti; - operazioni topografiche di rilevamento completo; - operazioni catastali (tipi di frazionamento, tipi mappali, denunce di nuova costruzione e variazione con acquisizione della rendita catastale, volture).
Dati principali
| Riferimento | ID2401338 |
| Data annuncio | 10/11/2024 |
| Contratto | Vendita |
| Tipologia | Capannone |
| Superficie | 3000 m2 |
| Piano | 1 totali |
| Uso immobile | Commerciale ed Industriale |
Costi
| Prezzo | 3.000.000 € |
| Prezzo al m2 | 1.000 €/m2 |
Efficienza energetica
| Riscaldamento | Autonomo |
| Classe energetica | G |
| Indice di prestazione energetica (IPE) | 65 kWh/m2 anno |
Planimetrie
Indirizzo e mappa
via Fratelli Rosselli, Trezzano sul Naviglio
Calcolo mutuo
Prezzo di vendita:
Anticipo
20,00
Mutuo
80,00
Tasso: -+
Rata: 8.580 al mese
I risultati sono una stima indicativa basata sui dati inseriti e non costituiscono un’offerta finanziaria.
Inserzionista

Casa & Industria - Immobili Per L'Impresa
VIA COMO 3, Lainate
Mostra Telefono
Chiama
CONTATTA

