
Per vedere altre immagini,
prova a chiederle all'inserzionista
prova a chiederle all'inserzionista
Appartamento via Nazionale, Carini
€ 155.000Rif. 1670 Appartamento su 2piani in vendita in via Nazionale
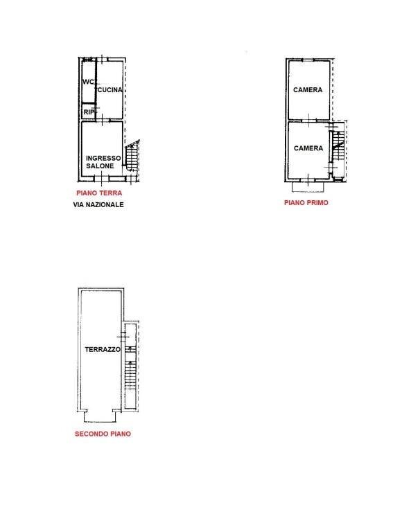
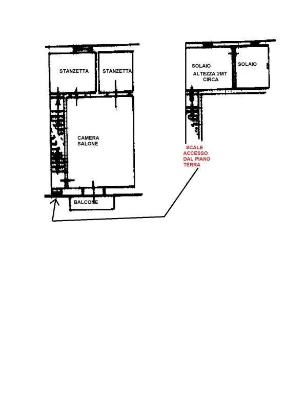
Rif. 1670 - Immobiliare Conigliaro propone in vendita a Villagrazia di Carini sulla via nazionale casa indipendente su due piani, una casa indipendente da ristrutturare che offre un'opportunità unica di personalizzare la tua dimora ideale. Con una superficie commerciale di circa 179 mq, l'immobile è diviso in due abitazioni, perfetto per chi cerca spazio e versatilità. Al piano terra, un ampio ingresso ti accoglie, conducendoti a una cucina funzionale, un pratico ripostiglio, un servizio e un terrazzo dove rilassarti all'aria aperta. Al primo piano, troverai due ampie camere, di cui una con balcone, ideali per creare ambienti accoglienti e luminosi. Il secondo piano offre un ampio terrazzo e un balcone, perfetti per godere di momenti di relax con vista. L'accesso alle scale dell'immobile 1 conduce alla seconda abitazione, che include un'ampia camera, due camerette e due solai al secondo piano. Completa la proprietà un giardinetto di pertinenza di circa 200 mq, un'oasi verde privata dove trascorrere piacevoli giornate all'aperto. Costruito nel 1960, l'immobile è dotato di ascensore e accesso adattato a persone con mobilità ridotta. Non perdere l'occasione di trasformare questa casa nella tua residenza dei sogni! Per ulteriori informazioni, contatta il numero 0918675239 o wsp3286434602 Classe energetica APE "G".
Dati principali
| Riferimento | 1670 |
| Data annuncio | 01/11/2024 |
| Contratto | Vendita |
| Tipologia | Appartamento |
| Superficie | 179 m2 |
| Locali | più di 5 (5 camere da letto, 2 altro), 3 bagni, cucina abitabile |
| Piano | 3 totali |
| Tipo di costruzione | Media |
| Numero di terrazzi | 1 |
| Numero di balconi | 1 |
| Box auto | Assente |
| Numero posti auto | 4 |
| Arredamento | Assente |
Caratteristiche
Costi
| Prezzo | 155.000 € |
| Prezzo al m2 | 866 €/m2 |
Efficienza energetica
| Anno costruzione | 1960 |
| Stato | Da ristrutturare |
| Riscaldamento | Assente |
| Classe energetica | G |
| Indice di prestazione energetica (IPE) | 175 kWh/m2 anno |
Indirizzo e mappa
via Nazionale, Carini
Calcolo mutuo
Prezzo di vendita:
Anticipo
20,00
Mutuo
80,00
Tasso: -+
Rata: 443 al mese
I risultati sono una stima indicativa basata sui dati inseriti e non costituiscono un’offerta finanziaria.
Inserzionista

Immobiliare Conigliaro
Via Capri 5, Carini
Mostra Telefono
Chiama
CONTATTA