Casa indipendente via Madonna della Neve, Lavagna
€ 1.900.000Lavagna prima collina - Casa indipendente vista mare
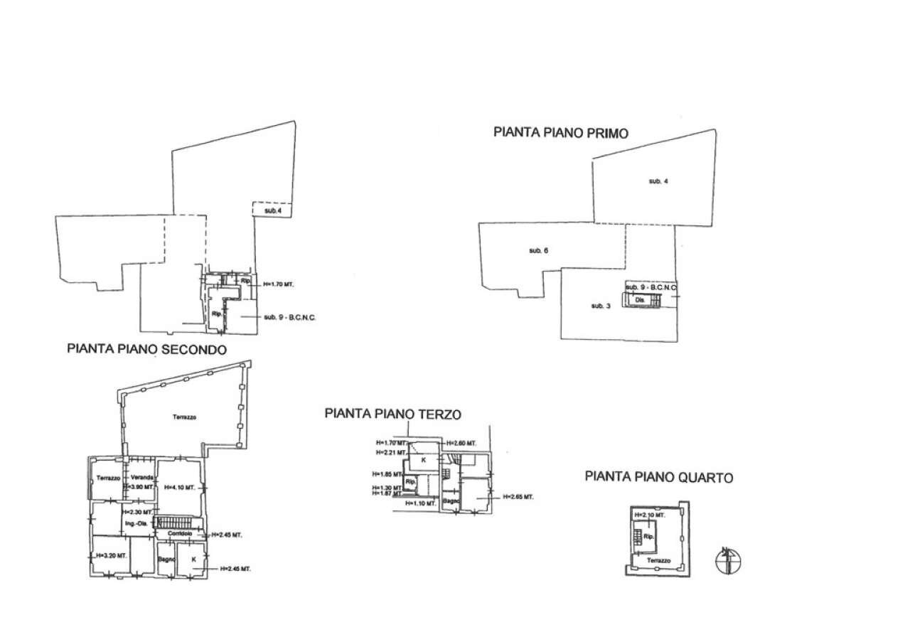
Lavagna, a circa due chilometri dal centro storico cittadino, l'immobiliare Progetto31 propone in ESCLUSIVA di vendita introvabille casa indipendente immersa tra verdeggianti ulivi liguri con magnifica vista mare sul Golfo del Tigullio. La villa, servita da strada carrabile, si sviluppa su una superficie abitativa di circa 600 mq. suddivisa in cinque appartamenti e da un ampio piano terra in passato destinato ad attività di ristorazione. Eccellente stato conservativo con indipendenza e privacy sui 4 lati. Fiore all'occhiello della nostra proposta di vendita è il curatissimo giardino pertinenziale di circa 600 mq dove poter sviluppare anche una zona piscina. Ampio parcheggio pertinenziale in grado di ospitare circa 15 automobili. Proposta ideale sia come prima che seconda casa nonchè come investimento per attività ricettiva.
Dati principali
| Riferimento | Villa Rosa |
| Data annuncio | 24/10/2024 |
| Contratto | Vendita |
| Tipologia | Casa indipendente |
| Superficie | 660 m2 |
| Locali | più di 5 (8 camere da letto, 9 altro), 4 bagni, cucina abitabile |
| Piano | 4 totali |
| Tipo di costruzione | Signorile |
| Numero di terrazzi | 2 |
| Numero di balconi | 2 |
| Box auto | Assente |
| Numero posti auto | 15 |
| Arredamento | Parziale |
Caratteristiche
Costi
| Prezzo | 1.900.000 € |
| Prezzo al m2 | 2.879 €/m2 |
| Spese Riscaldamento | € 1,00/anno |
| Spese condominiali | € 5,00/mese |
Efficienza energetica
| Anno costruzione | 1900 |
| Stato | Ristrutturato |
| Riscaldamento | Autonomo |
| Tipo Alimentazione Riscaldamento | Metano |
| Classe energetica | G |
| Indice di prestazione energetica (IPE) | 232.39 kWh/m2 anno |
Planimetrie
Indirizzo e mappa
via Madonna della Neve, Lavagna
Calcolo mutuo
Prezzo di vendita:
Anticipo
20,00
Mutuo
80,00
Tasso: -+
Rata: 5.434 al mese
I risultati sono una stima indicativa basata sui dati inseriti e non costituiscono un’offerta finanziaria.
Inserzionista

PROGETTO 31
Piazza Nostra Signora dell'orto 31, Chiavari
Mostra Telefono
Chiama
CONTATTA

