
Per vedere altre immagini,
prova a chiederle all'inserzionista
prova a chiederle all'inserzionista
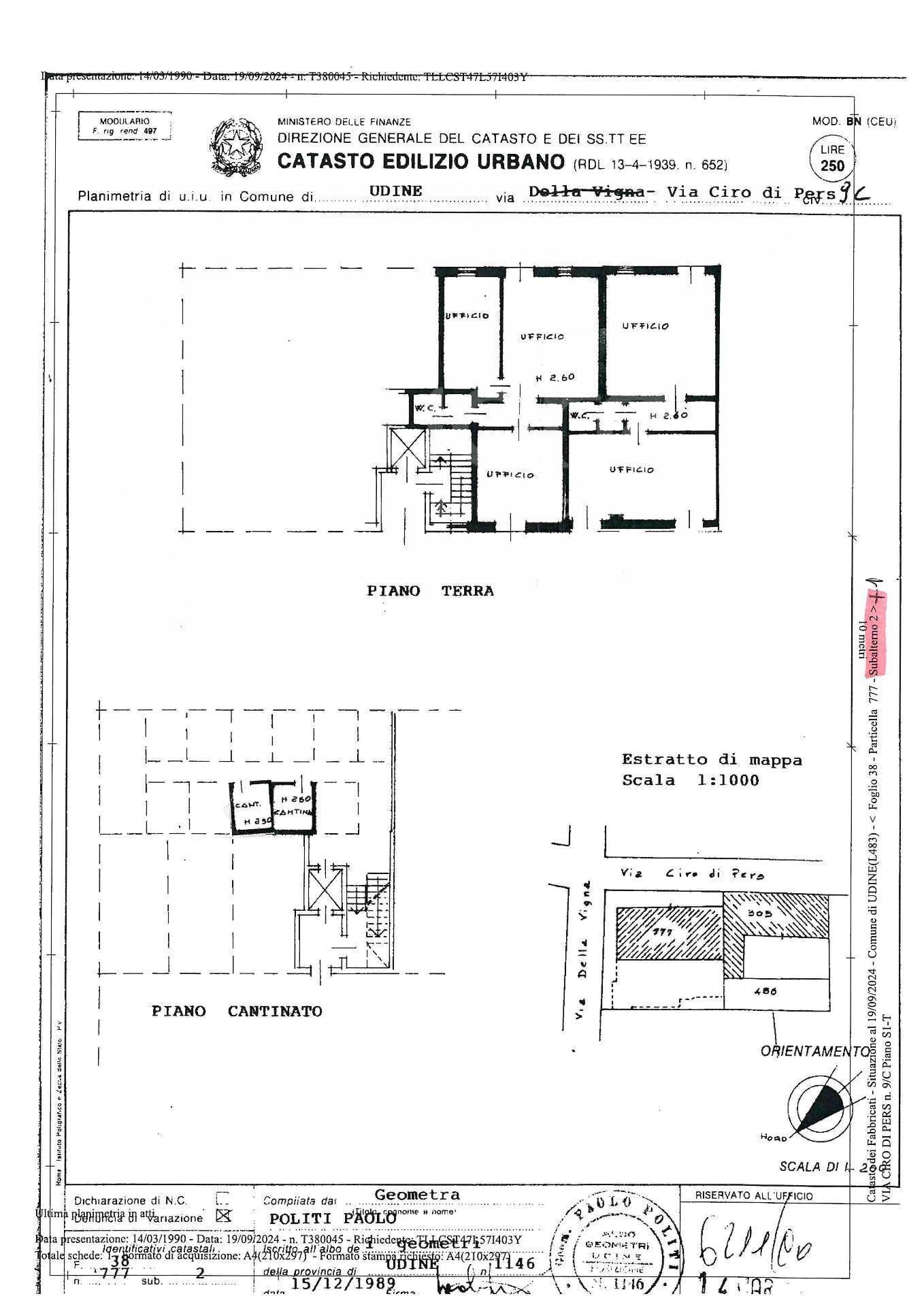
Ufficio via ciro di pers, Udine
€ 230.000
Udine, angolo tra Via Ciro di Pers e Via della Vigna, in ottimo contesto e non lontano dagli Uffici Finanziari e dal Tribunale, ufficio termoautonomo al piano terra composto da 5 vani e doppi servizi con antibagno. L'ufficio ha doppio ingresso indipendente e si presenta in buono stato manutentivo. Completano l'offerta due cantina al piano scantinato di 5 mq ciascuna. Possibilità acquisto uno o due posti auto coperti nello stesso stabile a Euro 22.000 ciascuno.
Dati principali
| Riferimento | CI223/r |
| Data annuncio | 23/10/2024 |
| Contratto | Vendita |
| Tipologia | Ufficio |
| Superficie | 164 m2 |
| Locali | 5 (5 camere da letto), 2 bagni |
| Piano | 3 totali |
Costi
| Prezzo | 230.000 € |
| Prezzo al m2 | 1.402 €/m2 |
Efficienza energetica
| Classe energetica | Immobile esente da certificazione energetica |
Indirizzo e mappa
via ciro di pers, Udine
Calcolo mutuo
Prezzo di vendita:
Anticipo
20,00
Mutuo
80,00
Tasso: -+
Rata: 658 al mese
I risultati sono una stima indicativa basata sui dati inseriti e non costituiscono un’offerta finanziaria.
Inserzionista

CQ CASAINVEST gruppo QUORE
via valussi 22, Udine
Mostra Telefono
Chiama
CONTATTA