Villa Unifamiliare Reggio nell'Emilia
€ 550.000
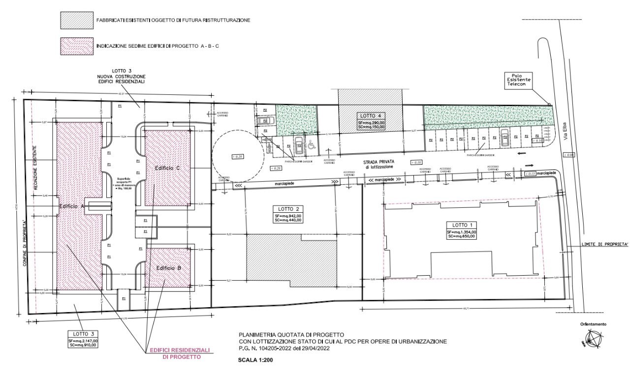
RIF. 849 D - COVIOLO: in una via chiusa all’interno di un bellissimo quartiere residenziale a pochi passi dal centro di Coviolo, proponiamo in vendita villa singola di nuova edificazione. La villa si sviluppa su due livelli ed è così composta: al piano terra sala con affaccio sul giardino privato, cucina abitabile, un bagno, oltre a garage, cantina e deposito attrezzi; al piano primo 3 camere matrimoniali, un bagno e una loggia. Classe energetica A. Possibilità di personalizzazione sia nella disposizione interna che nella scelta delle finiture. Consegna giugno 2026. Prezzo euro 550.000
Dati principali
| Riferimento | REF849 D |
| Data annuncio | 22/10/2024 |
| Contratto | Vendita |
| Tipologia | Villa Unifamiliare |
| Superficie | 146 m2 |
| Locali | 2 bagni |
Costi
| Prezzo | 550.000 € |
| Prezzo al m2 | 3.767 €/m2 |
Efficienza energetica
| Classe energetica | A |
| Indice di prestazione energetica (IPE) | - |
Indirizzo e mappa
Reggio nell'Emilia
Calcolo mutuo
Prezzo di vendita:
Anticipo
20,00
Mutuo
80,00
Tasso: -+
Rata: 1.573 al mese
I risultati sono una stima indicativa basata sui dati inseriti e non costituiscono un’offerta finanziaria.
Inserzionista
L Euroimmobiliare
Viale Umberto I, 6/B, Reggio nell'Emilia
Mostra Telefono
Chiama
CONTATTA

