Ufficio via Chieri, Andezeno
€ 400.000Palazzina uffici trasformabile in commerciale mq. 800
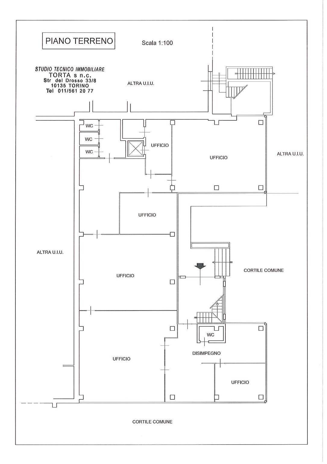
ANDEZENO (TO) a poca distanza da Chieri in zona commerciale, industriale servita da tutti i servizi e adiacente al paese proponiamo in vendita intera palazzina uso ufficio di mq. 800 indipendente trasformabile in commerciale disposta su due piani con ampio parcheggio su piazzale. L'immobile si presta ad essere sede ideale di prestigiosa azienda, coworking o locale commerciale. Riscaldamento autonomo a metano. Possibilità di frazionamento per piani. Prezzo affare Euro 400.000. Per appuntamenti e maggiori informazioni: STUDIO TECNICO IMMOBILIARE TORTA 0115612077 - 3357888299 www.immobiliaretorta.it - Aderente FIMAA
Dati principali
| Riferimento | VE ANDE PAL |
| Data annuncio | 09/10/2024 |
| Contratto | Vendita |
| Tipologia | Ufficio |
| Superficie | 800 m2 |
| Piano | 2 totali |
| Tipo di costruzione | Media |
| Uso immobile | Commerciale |
Caratteristiche
Costi
| Prezzo | 400.000 € |
| Prezzo al m2 | 500 €/m2 |
Efficienza energetica
| Riscaldamento | Autonomo |
| Classe energetica | G |
| Indice di prestazione energetica (IPE) | 65 kWh/m2 anno |
Planimetrie
Indirizzo e mappa
via Chieri, Andezeno
Calcolo mutuo
Prezzo di vendita:
Anticipo
20,00
Mutuo
80,00
Tasso: -+
Rata: 1.144 al mese
I risultati sono una stima indicativa basata sui dati inseriti e non costituiscono un’offerta finanziaria.
Inserzionista

Studio Tecnico Immobiliare Torta
Strada del Drosso 33/8, Torino
Mostra Telefono
Chiama
CONTATTA

