Appartamento via borgo santa lucia, 63, Guarcino
€ 98.000Guarcino Borgo Santa Lucia Appartamento con grande terrazza
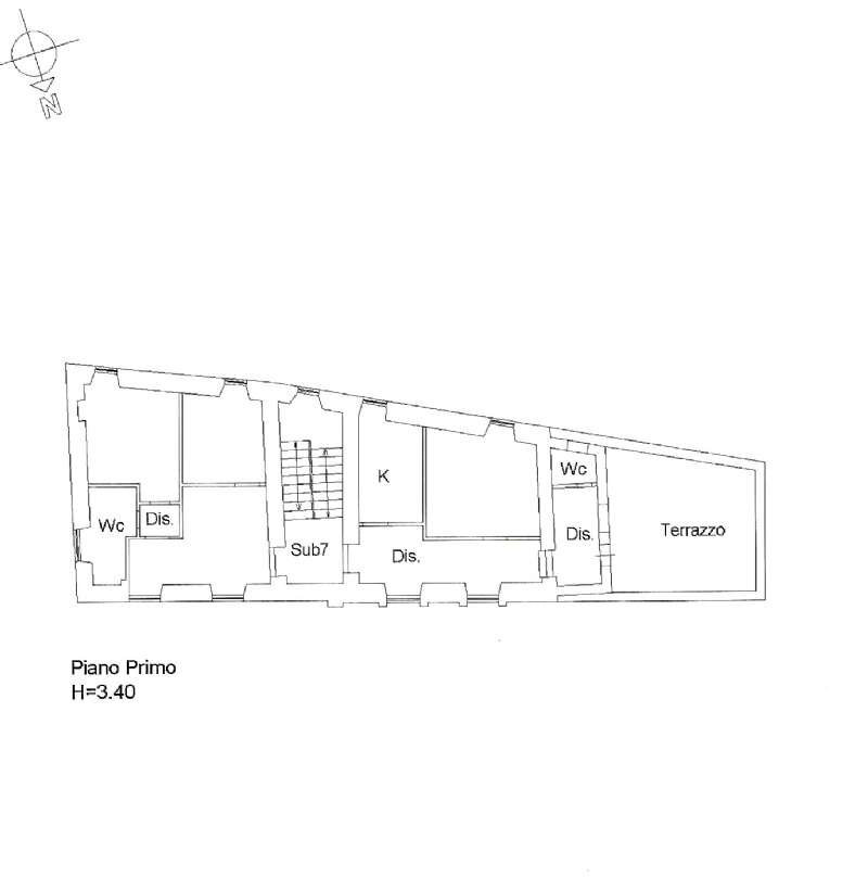
Proponiamo in vendita una unica unità immobiliare posta al primo piano per complessivi 170mq costituita da due appartamenti distinti che insistono sul medesimo pianerottolo uno di fronte all'altro. Il primo appartamento è composto da: soggiorno , cucina, disimpegno ed una grande terrazza di circa 30mq. Il secondo appartamento, che può considerarsi prosecuzione del primo come zona notte, prevede 3 camere , angolo cottura ed un servizio. Possibilità di box. Questo particolare contesto rappresenta una ottima opportunità per consentire assistenza ad un familiare pur mantenendo la propria indipendenza. Per info e visite rivolgersi alla Assoprogrammacasa Euro 98.000,00 tel.0677208000. Rif.!4/10
Dati principali
| Riferimento | 10/14 |
| Data annuncio | 08/10/2024 |
| Contratto | Vendita |
| Tipologia | Appartamento |
| Superficie | 169 m2 |
| Locali | 5 (3 camere da letto, 2 altro), 2 bagni, cucina abitabile |
| Piano | 1 di 3 totali |
| Tipo di costruzione | Epoca |
| Numero di terrazzi | 1 |
| Arredamento | Parziale |
Costi
| Prezzo | 98.000 € |
| Prezzo al m2 | 580 €/m2 |
Efficienza energetica
| Anno costruzione | 1900 |
| Stato | Buono |
| Riscaldamento | Assente |
| Classe energetica | Immobile esente da certificazione energetica |
Planimetrie
Indirizzo e mappa
via borgo santa lucia, 63, Guarcino
Calcolo mutuo
Prezzo di vendita:
Anticipo
20,00
Mutuo
80,00
Tasso: -+
Rata: 280 al mese
I risultati sono una stima indicativa basata sui dati inseriti e non costituiscono un’offerta finanziaria.
Inserzionista

Asso programma casa
via Corfinio n.9, Roma
Mostra Telefono
Chiama
CONTATTA

