Appartamento Viale Loano, Riccione
€ 375.000Riccione zona punta de l'Est appartamento ristrutturato 3 camere 2 bagni sale e cucina
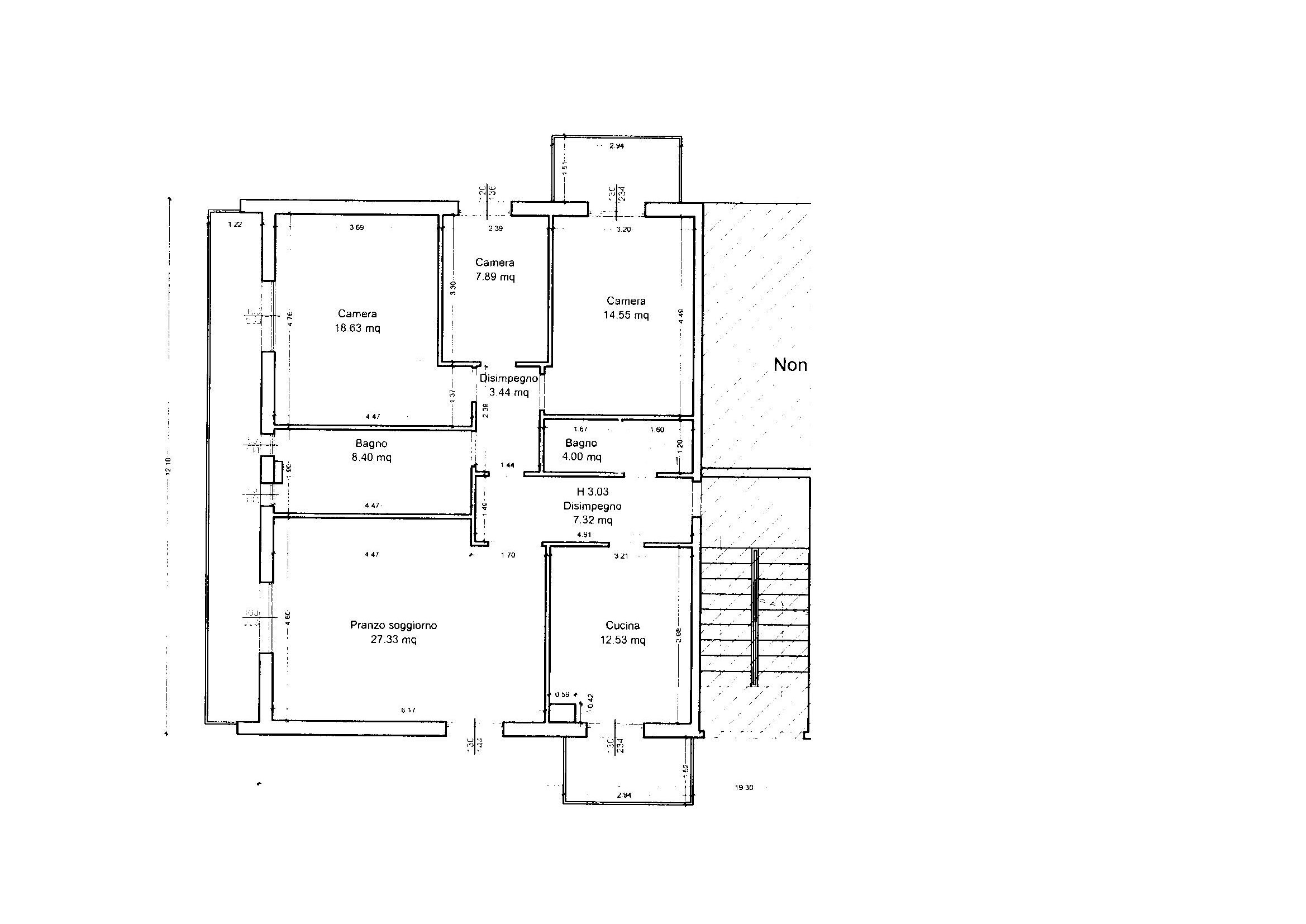
L'agenzia Immobiliare Labatericcione ha li piacere di proporre in esclusiva a Riccione zona punta de L'Est, in piccola palazzina residenziale un appartamento ristrutturato nel 2019 composto da cucina abitabile, ampio e luminoso salone, n. 3 camere da letto due matrimoniale ed una camera singola, due bagni, per totali 110mq, dispone di n. 3 Balconi per totali 20mq., completo di aria condizionata, serrande elettrice, caldaia montata da pochi anni, portone blindato, viene ceduto parzialmente arredato cucina compresa. Posizione comoda pee tutti i servizi, a pochi passi dalla fermata della Metromare e 400mt circa dal lungomare. Tutto in ottime condizioni, la ristrutturazione è recente, La piccola palazzina è ristrutturata anche esternamente ed è abitata tutto l'anno, contesto signorile. Rif. C531
Dati principali
| Riferimento | C531 |
| Data annuncio | 07/10/2024 |
| Contratto | Vendita |
| Tipologia | Appartamento |
| Superficie | 120 m2 |
| Locali | 5 (3 camere da letto, 2 altro), 2 bagni, cucina abitabile |
| Piano | 2 di 3 totali |
| Occupato | Libero |
| Numero di balconi | 3 |
| Arredamento | Parziale |
| Lati liberi | Tre |
Caratteristiche
Costi
| Prezzo | 375.000 € |
| Prezzo al m2 | 3.125 €/m2 |
Efficienza energetica
| Anno costruzione | 2000 |
| Stato | Ristrutturato |
| Aria Condizionata | Autonomo |
| Riscaldamento | Autonomo |
| Tipo Impianto Di Riscaldamento | a pavimento |
| Tipo Alimentazione Riscaldamento | Metano |
| Infissi esterni | Doppio vetro / PVC |
| Classe energetica | In fase di calcolo |
Planimetrie
Indirizzo e mappa
Viale Loano, Riccione
Calcolo mutuo
Prezzo di vendita:
Anticipo
20,00
Mutuo
80,00
Tasso: -+
Rata: 1.072 al mese
I risultati sono una stima indicativa basata sui dati inseriti e non costituiscono un’offerta finanziaria.
Inserzionista
Chiama
CONTATTA


