Trilocale via filzi, Civitanova Marche
Trattativa riservata
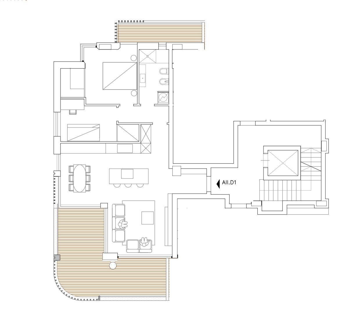
Classe energetica: A4 - Civitanova Marche in zona centrale ed a pochi passi da lungomare, appartamento di nuova costruzione posto al piano secondo delle dimensioni di circa 90 mq composto di ingresso su ampio soggiorno con angolo cottura, disimpegno nel reparto notte, una camera da letto matrimoniale con cabina armadio, una seconda camera da letto, un bagno con finestra ed un ripostiglio/lavanderia; completa la proprietà un loggia coperta ampiamente vivibile nel reparto giorno, un ampio terrazzo, una serra solare e balconi di servizio nel reparto notte. L'appartamento risulta inoltre caratterizzato da uno sorcio di mare e lungomare dalle finestre della zona giorno.
L'immobile, di prossima realizzazione, sarà caratterizzato da un estetica moderna ed innovativa, particolarmente curati saranno i dettagli costruttivi e l'impiantistica sarà mirata al massimo risparmio energetico. L'unità immobiliare verrà inoltre rifinita con ottimi materiali con facoltà di scelta da parte dell'acquirente su di un ricco capitolato incluso nel prezzo. Vi è inoltre la possibilità di dotare l'alloggio di comodo garage posto al piano seminterrato della stessa palazzina, con prezzo da computare a parte.
L'immobile, di prossima realizzazione, sarà caratterizzato da un estetica moderna ed innovativa, particolarmente curati saranno i dettagli costruttivi e l'impiantistica sarà mirata al massimo risparmio energetico. L'unità immobiliare verrà inoltre rifinita con ottimi materiali con facoltà di scelta da parte dell'acquirente su di un ricco capitolato incluso nel prezzo. Vi è inoltre la possibilità di dotare l'alloggio di comodo garage posto al piano seminterrato della stessa palazzina, con prezzo da computare a parte.
Dati principali
| Riferimento | v1023 |
| Data annuncio | 02/10/2024 |
| Contratto | Vendita |
| Tipologia | Appartamento |
| Superficie | 90 m2 |
| Locali | 3 (2 camere da letto, 1 altro), 1 bagno |
| Piano | 1 di 5 totali |
Caratteristiche
Costi
| Prezzo | Trattativa riservata |
Efficienza energetica
| Anno costruzione | 2025 |
| Riscaldamento | Autonomo |
| Classe energetica | Immobile esente da certificazione energetica |
Indirizzo e mappa
via filzi, Civitanova Marche
Inserzionista

DIMORE SOLUZIONI IMMOBILIARI
via Cavour n.14, Civitanova Marche
Mostra Cellulare
Chiama
CONTATTA

