Villa Contrada Casazze, Marsala
€ 800.000Villa Marina
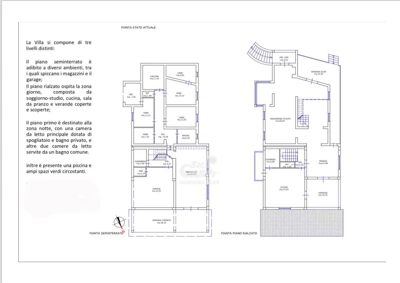
**Villa Marina: Eleganza e Comfort a Marsala** Scopri Villa Marina, una residenza elegante e ben strutturata situata nella splendida cornice di Marsala, in C. da Millami-Casazze. Perfetta per chi cerca spazi ampi e funzionali, questa villa offre una zona giorno luminosa e accogliente, ideale per momenti di relax e convivialità. La zona notte è confortevole e ben organizzata, con una camera da letto principale dotata di spogliatoio e bagno privato, oltre a due ulteriori camere servite da un bagno comune. Il fabbricato si estende su circa 600 m² commerciali, distribuiti su tre livelli distinti. Al piano seminterrato troverai magazzini e garage, mentre il piano rialzato ospita un soggiorno-studio, cucina, sala da pranzo e verande coperte e scoperte. Il piano primo è dedicato alla zona notte, garantendo privacy e comfort. All'esterno, un curato spazio verde circonda la villa, arricchito da una piscina che invita al relax. Il terreno di 4325 mq offre ampie possibilità di sviluppo grazie a diverse zone edificabili. Con orientamento sud-ovest, Villa Marina è l'opzione ideale per chi cerca una residenza di prestigio in una delle zone più affascinanti della Sicilia. Non perdere l'opportunità di vivere in questo angolo di paradiso! Richiesta 800.000,00 trattabili
Dati principali
| Riferimento | 10309 |
| Data annuncio | 20/09/2024 |
| Contratto | Vendita |
| Tipologia | Villa |
| Superficie | 600 m2 |
| Tipo di costruzione | Media |
| Box auto | Singolo |
Caratteristiche
Costi
| Prezzo | 800.000 € |
| Prezzo al m2 | 1.333 €/m2 |
Efficienza energetica
| Riscaldamento | Assente |
| Classe energetica | Immobile esente da certificazione energetica |
Indirizzo e mappa
Contrada Casazze, Marsala
Calcolo mutuo
Prezzo di vendita:
Anticipo
20,00
Mutuo
80,00
Tasso: -+
Rata: 2.288 al mese
I risultati sono una stima indicativa basata sui dati inseriti e non costituiscono un’offerta finanziaria.
Inserzionista

SicilCasa Immobiliare
corso antonio gramsci 61, Marsala
Mostra Cellulare
Chiama
CONTATTA

