Negozio Modena
€ 1.700 al mese
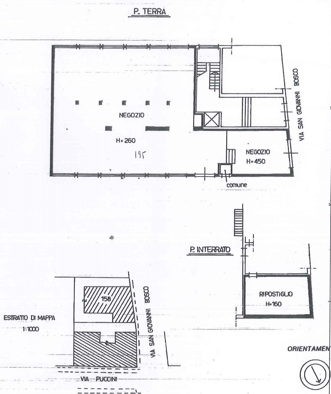
S. GIOVANNI BOSCO. negozio di oltre 240 mq con vetrina sul fronte strada, open space, dotato di area privata di mq 50. Libero. euro 1750 mensili
Dati principali
| Riferimento | CAP341 |
| Data annuncio | 19/09/2024 |
| Contratto | Affitto |
| Tipologia | Negozio |
| Superficie | 220 m2 |
| Locali | 1 bagno |
Costi
| Prezzo | 1.700 € al mese |
Efficienza energetica
| Classe energetica | Immobile esente da certificazione energetica |
Planimetrie
Indirizzo e mappa
Modena
Inserzionista

Capital Immobiliare Sas
Via Imola 90/B, Modena
Mostra Telefono
Chiama
CONTATTA

