Casa indipendente via Roma, Torrebruna
€ 290.000Palazzetto Torrebruna
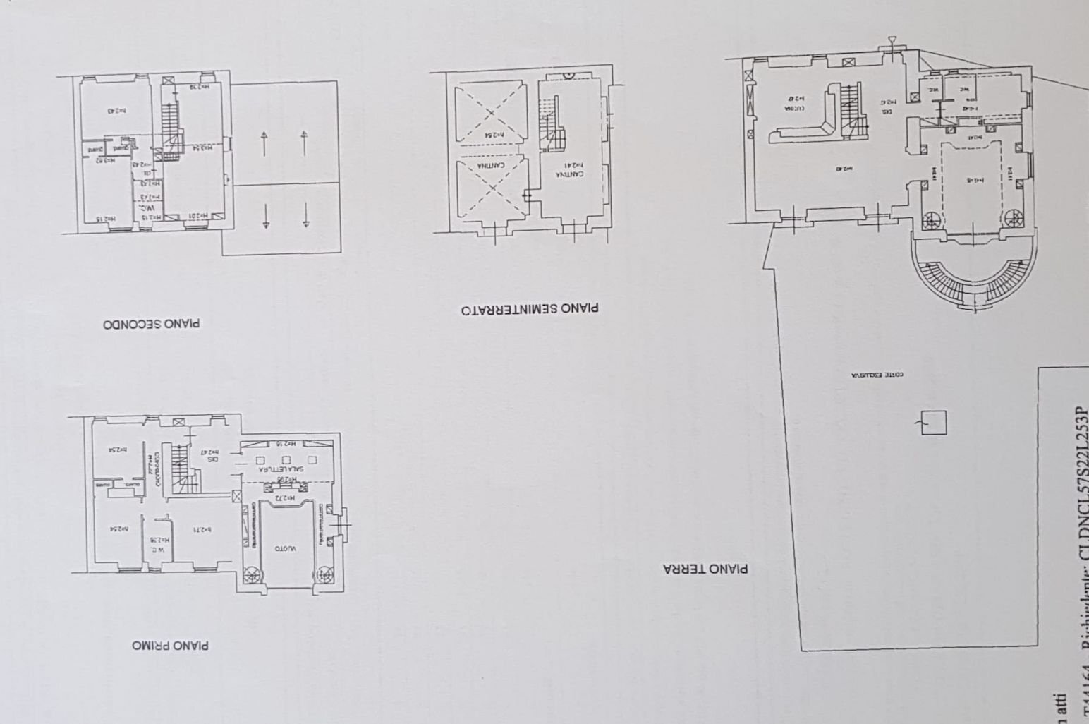
Nell'incanto di un paesino collinare con la vista del mare e della campagna circostante, troverete questo palazzetto completamente restaurato, gioiello di architettura, pronto da abitare, completo di arredi preziosi. Torrebruna si trova a 30 minuti dal mare, 40 minuti da Vasto e poco di più da Pescara. La proprietà sorge nel centro del paese e dispone di un giardino privato di 500 mq, con alberi di alto fusto dal quale il panorama è meraviglioso, con il cielo limpido si vedono anche le Isole Tremiti. Il giardino è completo di sistema di irrigazione automatico e pozzo dell'acqua. La costruzione si articola su quattro piani così organizzati: - piano giardino - taverna decorata da archi di pietra a vista, garage con serranda elettrica ed una capienza di almeno quattro macchine, la cantina con soffitto a volt e legnaia. - piano terra - ingresso, cucina abitabile con camino, salotto, secondo salone a doppia altezza con camino in pietra rosa di Verona del '600, dependance con camera da letto di servizio e due bagni. - piano primo - disimpegno, zona notte con tre grandi camere da letto con cabine armadio, bagno padronale, zona studio e biblioteca sovrastante il salone a doppia altezza. - piano secondo - terzo salone con camino in pietra serena, disimpegno, due camere da letto con cabina armadio e bagno padronale, nel sottotetto soffitta a vista con finestra. Le vetrate di grande valore e di grandi dimensione hanno vetri silence di sicurezza marca Schuco.
Dati principali
| Riferimento | Palazzetto Torrebruna |
| Data annuncio | 07/09/2024 |
| Contratto | Vendita |
| Tipologia | Casa indipendente |
| Superficie | 670 m2 |
| Locali | più di 5 (5 camere da letto, 6 altro), 3 bagni, cucina abitabile |
| Piano | 4 totali |
| Tipo di costruzione | Signorile |
| Numero di terrazzi | 1 |
| Numero di balconi | 1 |
| Box auto | Doppio |
| Numero posti auto | 4 |
| Arredamento | Completo |
Caratteristiche
Costi
| Prezzo | 290.000 € |
| Prezzo al m2 | 433 €/m2 |
Efficienza energetica
| Anno costruzione | 1900 |
| Stato | Ottimo |
| Riscaldamento | Autonomo |
| Classe energetica | F |
| Indice di prestazione energetica (IPE) | 175 kWh/m2 anno |
Planimetrie
Indirizzo e mappa
via Roma, Torrebruna
Calcolo mutuo
Prezzo di vendita:
Anticipo
20,00
Mutuo
80,00
Tasso: -+
Rata: 829 al mese
I risultati sono una stima indicativa basata sui dati inseriti e non costituiscono un’offerta finanziaria.
Inserzionista

Realty Italia Immobiliare Srl
piazza mancini 4, Roma
Mostra Cellulare
Chiama
CONTATTA

