Casa indipendente frazione San Giacomo, Camporosso
€ 329.000PORZIONE DI VILLA CON VISTA PANORAMICA FINO AL MARE, SAN GIACOMO, CAMPOROSSO
Proponiamo in vendita una splendida porzione di villa situata a San Giacomo, Camporosso, in una zona tranquilla, immersa nel verde, soleggiata tutto il giorno, luminosissima, soleggiata tutto il giorno e a pochi minuti dai servizi del paese. Questa affascinante casa rappresenta un'ottima opportunità sia come prima residenza che come investimento per avviare un'attività turistica.
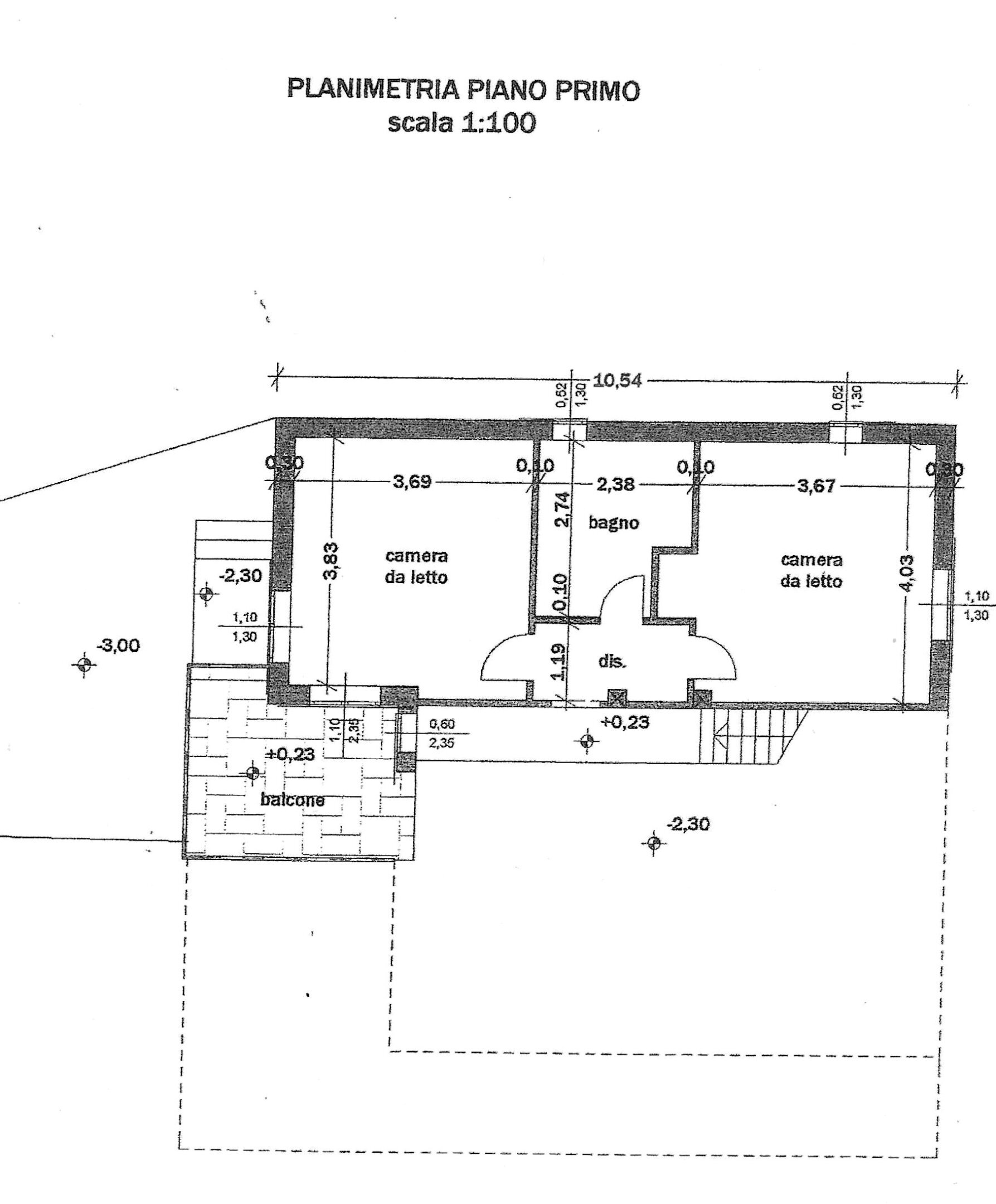
L'immobile, grazie alla sua ampia metratura, è ideale per una famiglia numerosa. Si sviluppa su due livelli: al piano terra troviamo un ampio salone con affaccio su un terrazzo panoramico che offre una vista mozzafiato fino al mare, una cucina spaziosa e un primo bagno. Una comoda scala conduce alla zona notte, dove si trovano due camere da letto e un secondo bagno.
Il tutto è circondato da un giardino e da un terreno pertinenziale, perfetti per trascorrere momenti di relax all'aperto. La proprietà dispone di un facile e comodo parcheggio, direttamente all'interno del giardino di circa 1.700 mq.
Le buone condizioni interne permettono di abitare l'immobile fin da subito, ma è possibile valutare opportunità di ampliamento previa consultazione di un tecnico specializzato, nel caso si desiderasse effettuare dei lavori di ristrutturazione.
Non perdere l'occasione di visitare questa villa unica, dove la tranquillità della natura si sposa con una vista spettacolare!
L'immobile, grazie alla sua ampia metratura, è ideale per una famiglia numerosa. Si sviluppa su due livelli: al piano terra troviamo un ampio salone con affaccio su un terrazzo panoramico che offre una vista mozzafiato fino al mare, una cucina spaziosa e un primo bagno. Una comoda scala conduce alla zona notte, dove si trovano due camere da letto e un secondo bagno.
Il tutto è circondato da un giardino e da un terreno pertinenziale, perfetti per trascorrere momenti di relax all'aperto. La proprietà dispone di un facile e comodo parcheggio, direttamente all'interno del giardino di circa 1.700 mq.
Le buone condizioni interne permettono di abitare l'immobile fin da subito, ma è possibile valutare opportunità di ampliamento previa consultazione di un tecnico specializzato, nel caso si desiderasse effettuare dei lavori di ristrutturazione.
Non perdere l'occasione di visitare questa villa unica, dove la tranquillità della natura si sposa con una vista spettacolare!
Dati principali
| Riferimento | ID2300195 |
| Data annuncio | 13/08/2024 |
| Contratto | Vendita |
| Tipologia | Casa indipendente |
| Superficie | 140 m2 |
| Locali | 5 (2 camere da letto, 3 altro), 2 bagni, cucina abitabile |
| Piano | 1 di 2 totali |
| Occupato | Libero |
| Numero di terrazzi | 4 |
| Numero box | 1 |
| Numero posti auto | 4 |
| Arredamento | Parziale |
Caratteristiche
Costi
| Prezzo | 329.000 € |
| Prezzo al m2 | 2.350 €/m2 |
Efficienza energetica
| Riscaldamento | Autonomo |
| Tipo Impianto Di Riscaldamento | a radiatori |
| Tipo Alimentazione Riscaldamento | Metano |
| Infissi esterni | Doppio vetro / Legno |
| Classe energetica | In fase di calcolo |
Planimetrie
Indirizzo e mappa
Camporosso - località San Giacomo
Calcolo mutuo
Prezzo di vendita:
Anticipo
20,00
Mutuo
80,00
Tasso: -+
Rata: 941 al mese
I risultati sono una stima indicativa basata sui dati inseriti e non costituiscono un’offerta finanziaria.
Inserzionista

DussaiCä Real Estate Brokerage
Via Patrioti Martiri 12, Dolceacqua
Mostra Cellulare
Maione Ilenia
Mostra Telefono
Chiama
CONTATTA

