Appartamento via machiavelli, Viareggio
€ 260.000
Classe energetica: F - EPgl,nren: 347,70 kWh/m² - NOVITA' Viareggio Centro, vicinanze zona commerciale, appartamento posto al piano primo ed ultimo con ingresso indipendente posto a circa 800 metri dal mare in contesto tipo "Casa Viareggina".
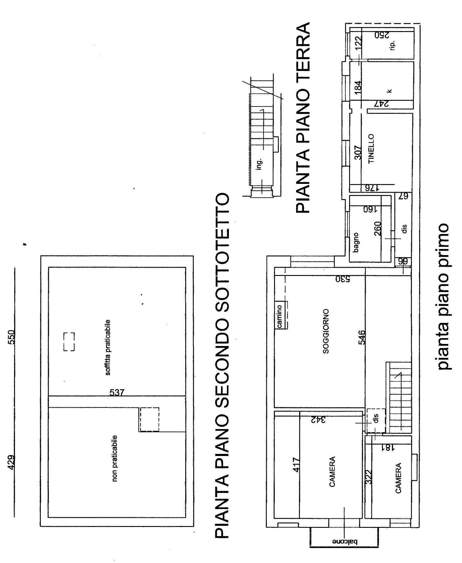
Si accede all'appartamento tramite ingresso indipendente al piano terra. Al piano primo si compone di grande sala con camino, camera matrimoniale con balcone fronte strada, camerina/stanza armadi,
disimpegno, bagno con finestra, tinello, cucina con dispensa e ripostiglio. Sottotetto accessibile tramite scala retrattile. L'appartamento si presenta in buone condizioni ed ottimamente mantenuto. Termo autonomo a metano, aria condizionata e camino in sala.
Ottima soluzione per chi desidera un immobile da abitare o come casa vacanza. L'indirizzo è indicativo della zona ma per motivi di privacy non è riferito all'immobile in oggetto.
Si accede all'appartamento tramite ingresso indipendente al piano terra. Al piano primo si compone di grande sala con camino, camera matrimoniale con balcone fronte strada, camerina/stanza armadi,
disimpegno, bagno con finestra, tinello, cucina con dispensa e ripostiglio. Sottotetto accessibile tramite scala retrattile. L'appartamento si presenta in buone condizioni ed ottimamente mantenuto. Termo autonomo a metano, aria condizionata e camino in sala.
Ottima soluzione per chi desidera un immobile da abitare o come casa vacanza. L'indirizzo è indicativo della zona ma per motivi di privacy non è riferito all'immobile in oggetto.
Dati principali
| Riferimento | 2788 |
| Data annuncio | 03/08/2024 |
| Contratto | Vendita |
| Tipologia | Appartamento |
| Superficie | 89 m2 |
| Locali | 5 (2 camere da letto, 3 altro), 1 bagno |
| Piano | 1 totali |
Costi
| Prezzo | 260.000 € |
| Prezzo al m2 | 2.921 €/m2 |
Efficienza energetica
| Riscaldamento | Autonomo |
| Classe energetica | Immobile esente da certificazione energetica |
Indirizzo e mappa
via machiavelli, Viareggio
Calcolo mutuo
Prezzo di vendita:
Anticipo
20,00
Mutuo
80,00
Tasso: -+
Rata: 744 al mese
I risultati sono una stima indicativa basata sui dati inseriti e non costituiscono un’offerta finanziaria.
Inserzionista

Climax Immobiliare
C.so Garibaldi, 127, Viareggio
Mostra Telefono
Mostra Cellulare
Chiama
CONTATTA

