Casa indipendente Via Provinciale Nord, Verucchio
€ 130.000Casa indipendente in vendita
VILLA VERUCCHIO:
Proponiamo in vendita esclusiva ampia casa colonica da demolire con possibilità di presentare un nuovo progetto e di relizzare una nuova costruzione secondo le proprie esigenze. Disposta su due livelli e con giardino pertinenziale di circa 1800mq arricchito da alberi da frutto e ulivi.
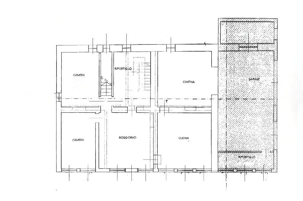
La soluzione si presenta allo stato originale e quindi da ristrutturare, ed è composta al piano terra da ampio soggiorno, cucina abitabile, ripostiglio, tre camere da letto matrimoniali, bagno e locale tecnico.
Tramite una scala in muratura si accede al piano superiore che dispone di un comodo disimpegno, una camera padronale, due camere matrimoniali.
Se sei alla ricerca di una casa indipendente con ampio giardino ma non vuoi allontanarti troppo dalla città allora questa potrebbe essere la soluzione giusta per te!
Per maggiori informazioni chiama al 0541 089764 oppure passa a trovarci Via Casale, 174 a Villa Verucchio!!
Proponiamo in vendita esclusiva ampia casa colonica da demolire con possibilità di presentare un nuovo progetto e di relizzare una nuova costruzione secondo le proprie esigenze. Disposta su due livelli e con giardino pertinenziale di circa 1800mq arricchito da alberi da frutto e ulivi.
La soluzione si presenta allo stato originale e quindi da ristrutturare, ed è composta al piano terra da ampio soggiorno, cucina abitabile, ripostiglio, tre camere da letto matrimoniali, bagno e locale tecnico.
Tramite una scala in muratura si accede al piano superiore che dispone di un comodo disimpegno, una camera padronale, due camere matrimoniali.
Se sei alla ricerca di una casa indipendente con ampio giardino ma non vuoi allontanarti troppo dalla città allora questa potrebbe essere la soluzione giusta per te!
Per maggiori informazioni chiama al 0541 089764 oppure passa a trovarci Via Casale, 174 a Villa Verucchio!!
Dati principali
| Riferimento | 60938544 |
| Data annuncio | 27/07/2024 |
| Contratto | Vendita |
| Tipologia | Casa indipendente |
| Superficie | 250 m2 |
| Locali | più di 5 (7 altro), 1 bagno |
| Piano | 1 totali |
Costi
| Prezzo | 130.000 € |
| Prezzo al m2 | 520 €/m2 |
Efficienza energetica
| Anno costruzione | 1950 |
| Riscaldamento | Autonomo |
| Tipo Alimentazione Riscaldamento | Metano |
| Classe energetica | Immobile esente da certificazione energetica |
Planimetrie
Video
Indirizzo e mappa
Via Provinciale Nord, Verucchio
Calcolo mutuo
Prezzo di vendita:
Anticipo
20,00
Mutuo
80,00
Tasso: -+
Rata: 372 al mese
I risultati sono una stima indicativa basata sui dati inseriti e non costituiscono un’offerta finanziaria.
Inserzionista
Chiama
CONTATTA

