Casa semi indipendente Via Antonio Gramsci, Carisio
€ 99.000Casa semindipendente in vendita
Nella zona centrale del paese, proponiamo una splendida soluzione bifamiliare disposta su due livelli, circondata da un ampio giardino privato di circa 1000 metri quadri, ideale per chi desidera vivere in tranquillità senza rinunciare alla comodità dei servizi.
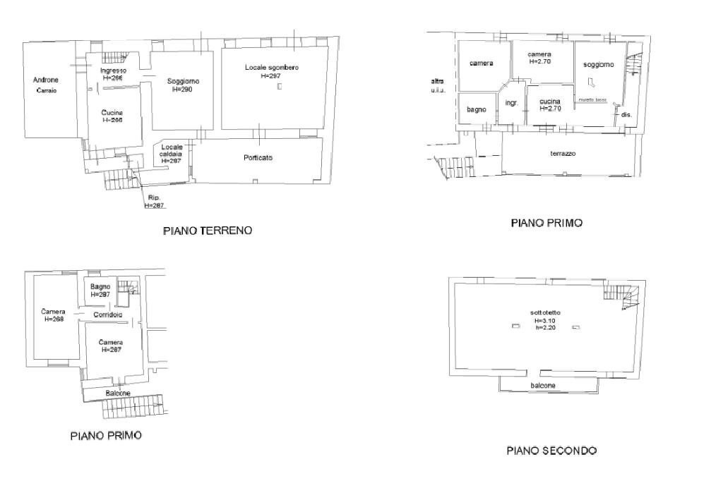
L'immobile si compone di due appartamenti distinti. Il primo appartamento, ristrutturato agli inizi degli anni 2000, è caratterizzato da un tocco moderno nei pavimenti e nei bagni, recentemente rifatti. L'ingresso si apre su un disimpegno che conduce alla cucina abitabile con accesso diretto al giardino, perfetta per pranzi all'aperto e momenti di relax. Il soggiorno, di generosa metratura, offre un ambiente accogliente e spazioso per vivere momenti conviviali, mentre il bagno con doccia completa il piano terra. Una scala interna, posta nel disimpegno, conduce alla zona notte situata al primo piano, composta da due ampie camere da letto, ideali per il riposo e la privacy, e un ulteriore bagno con doccia.
Il secondo appartamento, edificato nel 2010, si presenta in ottime condizioni e di recente costruzione. L'ingresso, raggiungibile tramite una scala esterna situata nel cortile, conduce a un ampio terrazzo, perfetto per godere di momenti all'aperto e per organizzare cene estive. Attraversando il terrazzo, si accede all'appartamento, che si apre su un disimpegno. La cucina abitabile con annesso soggiorno offre un ambiente funzionale e accogliente, mentre le due camere da letto garantiscono spazio e comfort. Il bagno con doccia completa la disposizione degli spazi.
L'immobile è inoltre dotato di un ampio locale sottotetto, delle stesse dimensioni dell'appartamento del secondo piano. Questo spazio, grazie alle sue altezze e alla fruibilità, si presta a diverse possibilità di personalizzazione, permettendo la creazione di un ulteriore appartamento con ingresso autonomo dal terrazzo.
Completano la proprietà una tettoia con ampio spazio per rimessaggio e un magazzino annesso al corpo principale della casa, ideale per riporre attrezzi e materiali vari. Questa soluzione bifamiliare rappresenta un'opportunità unica per chi cerca una residenza spaziosa e versatile, in una posizione centrale ma immersa nella tranquillità di un grande giardino privato.
L'immobile si compone di due appartamenti distinti. Il primo appartamento, ristrutturato agli inizi degli anni 2000, è caratterizzato da un tocco moderno nei pavimenti e nei bagni, recentemente rifatti. L'ingresso si apre su un disimpegno che conduce alla cucina abitabile con accesso diretto al giardino, perfetta per pranzi all'aperto e momenti di relax. Il soggiorno, di generosa metratura, offre un ambiente accogliente e spazioso per vivere momenti conviviali, mentre il bagno con doccia completa il piano terra. Una scala interna, posta nel disimpegno, conduce alla zona notte situata al primo piano, composta da due ampie camere da letto, ideali per il riposo e la privacy, e un ulteriore bagno con doccia.
Il secondo appartamento, edificato nel 2010, si presenta in ottime condizioni e di recente costruzione. L'ingresso, raggiungibile tramite una scala esterna situata nel cortile, conduce a un ampio terrazzo, perfetto per godere di momenti all'aperto e per organizzare cene estive. Attraversando il terrazzo, si accede all'appartamento, che si apre su un disimpegno. La cucina abitabile con annesso soggiorno offre un ambiente funzionale e accogliente, mentre le due camere da letto garantiscono spazio e comfort. Il bagno con doccia completa la disposizione degli spazi.
L'immobile è inoltre dotato di un ampio locale sottotetto, delle stesse dimensioni dell'appartamento del secondo piano. Questo spazio, grazie alle sue altezze e alla fruibilità, si presta a diverse possibilità di personalizzazione, permettendo la creazione di un ulteriore appartamento con ingresso autonomo dal terrazzo.
Completano la proprietà una tettoia con ampio spazio per rimessaggio e un magazzino annesso al corpo principale della casa, ideale per riporre attrezzi e materiali vari. Questa soluzione bifamiliare rappresenta un'opportunità unica per chi cerca una residenza spaziosa e versatile, in una posizione centrale ma immersa nella tranquillità di un grande giardino privato.
Dati principali
| Riferimento | 60928903 |
| Data annuncio | 12/07/2024 |
| Contratto | Vendita |
| Tipologia | Casa semi indipendente |
| Superficie | 300 m2 |
| Locali | più di 5 (8 altro), 3 bagni |
| Piano | 2 totali |
Costi
| Prezzo | 99.000 € |
| Prezzo al m2 | 330 €/m2 |
Efficienza energetica
| Anno costruzione | 1960 |
| Riscaldamento | Autonomo |
| Tipo Alimentazione Riscaldamento | Metano |
| Classe energetica | F |
| Indice di prestazione energetica (EP GL, REN) | 0.84 kWh/m3 anno |
| Indice di prestazione energetica (EP GL, NREN) | 204.49 kWh/m3 anno |
Planimetrie
Video
Indirizzo e mappa
Via Antonio Gramsci, Carisio
Calcolo mutuo
Prezzo di vendita:
Anticipo
20,00
Mutuo
80,00
Tasso: -+
Rata: 283 al mese
I risultati sono una stima indicativa basata sui dati inseriti e non costituiscono un’offerta finanziaria.
Inserzionista
Chiama
CONTATTA

