Trilocale via Massimo Portalupi 6., Collegno
€ 109.500Trliocale con doppia esposizione . Via Portalupi 6
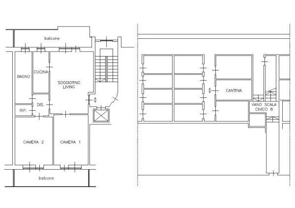
Nella zona di Collegno servita da grandi centri commerciali e da comodi accessi alla tangenziale, a 10 minuti dal capolinea della metropolitana Fermi, vendiamo spaziosi e luminosi quadrilocali di circa 100 mq. L'appartamento ha due arie ed è composto da ingresso, grande soggiorno, cucinotto, due grandi camere, disimpegno, doppi servizi e ripostiglio; completano la proprietà due ampi balconi e cantina al piano primo interrato. Disponibilità spaziosi box e posti auto. La soluzione abitativa proposta è presente ai piani primo, secondo, terzo, quarto e sesto. L'appartamento, date le ampie dimensioni, potrebbe essere suddiviso in due unità abitative, quindi adatto ad investimento. Prezzi a partire da 157.600 € (€/mq 1350) Altri servizi: - presenza di negozi commerciali al piano terra - Scuole nelle vicinanze tra cui una Materna, una Media ed una Elementare - fermata bus sotto casa delle linee CP1-32-44-44s-89/-98-1117
Dati principali
| Riferimento | Via Massimo Portalupi, 8 - SUB |
| Data annuncio | 25/06/2024 |
| Contratto | Vendita |
| Tipologia | Appartamento |
| Superficie | 96 m2 |
| Locali | 3 (2 camere da letto, 1 altro), 1 bagno, cucina semi abitabile |
| Piano | 1 di 6 totali |
| Tipo di costruzione | Media |
| Numero di balconi | 1 |
| Arredamento | Assente |
Caratteristiche
Costi
| Prezzo | 109.500 € |
| Prezzo al m2 | 1.141 €/m2 |
| Spese condominiali | € 60,00/mese |
Efficienza energetica
| Anno costruzione | 1970 |
| Stato | Buono |
| Riscaldamento | Centralizzato |
| Classe energetica | D |
| Indice di prestazione energetica (IPE) | 189 kWh/m2 anno |
Planimetrie
Indirizzo e mappa
via Massimo Portalupi 6., Collegno
Calcolo mutuo
Prezzo di vendita:
Anticipo
20,00
Mutuo
80,00
Tasso: -+
Rata: 313 al mese
I risultati sono una stima indicativa basata sui dati inseriti e non costituiscono un’offerta finanziaria.
Inserzionista

Immo Group srl
Via Roma 101, Torino
Mostra Telefono
Chiama
CONTATTA

