Villa Bifamiliare Massa Lombarda
€ 320.000
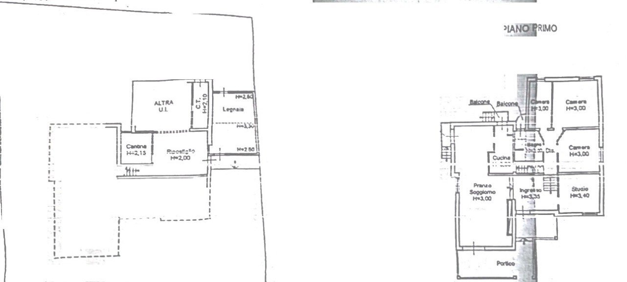
RIF. 0062 MASSA LOMBARDA VENDIAMO INTERA VILLA BIFAMILIARE CON GIARDINO PERTINENZIALE BEN CURATO DI MQ 800 CIRCA, CON 2 UNITA’ IMMOBILIARI COMPOSTI DA: APPARTAMENTO PRINCIPALE SIGNORILE CON INGRESSO ARREDABILE, SALA GRANDE CON CAMINO, CUCINA SEPARATA, 4 CAMERE DA LETTO E BAGNO; APPARTAMENTO DA TERMINARE, COMPOSTO DA INGRESSO SU SOFFITTA, CUCINA ABITABILE, 2 CAMERE, 3 SOFFITTE ABITABILI, RIPOSTIGLIO E BAGNO. AL PIANO TERRA TROVIAMO UN GARAGE, 2 CANTINE, IL LOCALE CALDAIA, UNA LAVANDERIA CON WC ED UN RIPOSTIGLIO. RICHIESTA EURO 320.000,00
Dati principali
| Riferimento | CSI062 |
| Data annuncio | 25/05/2024 |
| Contratto | Vendita |
| Tipologia | Villa Bifamiliare |
| Superficie | 423 m2 |
| Locali | 3 bagni |
Costi
| Prezzo | 320.000 € |
| Prezzo al m2 | 757 €/m2 |
Efficienza energetica
| Classe energetica | G |
Planimetrie
Indirizzo e mappa
Massa Lombarda
Calcolo mutuo
Prezzo di vendita:
Anticipo
20,00
Mutuo
80,00
Tasso: -+
Rata: 915 al mese
I risultati sono una stima indicativa basata sui dati inseriti e non costituiscono un’offerta finanziaria.
Inserzionista

Consulenze e Servizi Immobiliari
Via Garibaldi 1, Massa Lombarda
Mostra Telefono
Chiama
CONTATTA

