Capannone Parma
€ 930.000
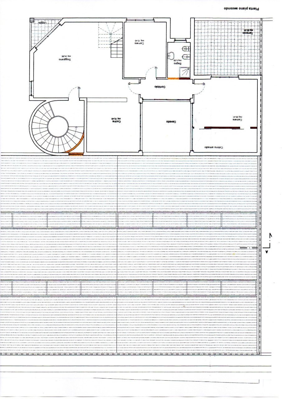
CAPANNONE DI 320 MQ PIU’INTERA PALAZZINA DI 400 MQ adiacente con area cortilizia e giardino privato. La palazzina, di 3 piani più mansarda, è così suddivisa: al piano terra ufficio (con ingresso indipendente) di 125 mq, 4 stanze bagno; al primo piano ufficio di 125 mq con 5 stanze, bagno, loggia e balcone; al secondo piano appartamento residenziale con salone con camino, cucina abitabile, 2 matrimoniali, una delle quali con cabina armadio e terrazzo a sud, bagno e loggia. Mansarda collegata con scala dal soggiorno composta da salotto con ampio e sfruttabile terrazzo con gazebo, camera e bagno con vasca idromassaggio, Il tutto in perfetto stato e già abitabili. Il capannone-magazzino è di 225 mq soppalco di 97 mq, spogliatoi, 2 bagni, 2 docce. Lavanderia, garage di 40 mq, cantina e ripostiglio, giardino e ampio cortile. Ideali per famiglia con attività . Gli uffici possono essere trasformati in appartamenti residenziali visto le predisposizioni realizzate in fase di costruzione. Libero alla vendita. Il quartiere, nella località di Vicofertile, è vicino al centro sportivo e con via d’accesso comoda a via Spezia e tangenziale e con ampi parcheggi. Il prezzo è do euro 930.000
Dati principali
| Riferimento | SERG15A |
| Data annuncio | 05/04/2024 |
| Contratto | Vendita |
| Tipologia | Capannone |
| Superficie | 320 m2 |
| Locali | 8 bagni |
Costi
| Prezzo | 930.000 € |
| Prezzo al m2 | 2.906 €/m2 |
Efficienza energetica
| Classe energetica | Immobile esente da certificazione energetica |
Planimetrie
Indirizzo e mappa
Parma
Calcolo mutuo
Prezzo di vendita:
Anticipo
20,00
Mutuo
80,00
Tasso: -+
Rata: 2.660 al mese
I risultati sono una stima indicativa basata sui dati inseriti e non costituiscono un’offerta finanziaria.
Inserzionista

Studio Service
Viale Fratti, 30/C, Parma
Mostra Telefono
Mostra Cellulare
Chiama
CONTATTA

