Trilocale Via circonvallazione, Mirandola
€ 230.000Trilocale in vendita
MIRANDOLA: In zona adiacente al centro e comoda a tutti i servizi, proponiamo trilocale posto al primo piano servito da ascensore, in palazzina di sole 6 unità di nuova costruzione in classe energetica A4.
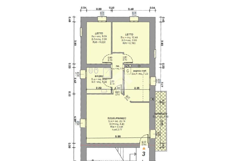
La soluzione è composta da ingresso su soggiorno di 25 mq con terrazzo, cucina abitabile, disipegno, bagno e due camere da letto.
Peculiarità: La soluzione gode di riscaldamento a pavimento, infissi con doppio vetro camera, porta d'ingresso blindata, posto auto, garage acquistabile a parte.
Per tutelare la privacy dei nostri clienti, l'indirizzo del presente annuncio potrebbe non corrispondere in maniera precisa all'esatta ubicazione dell'immobile.
Desideri conoscere il valore della tua casa? Chiamaci allo 0535.652477 per una valutazione gratuita e senza impegno.
La soluzione è composta da ingresso su soggiorno di 25 mq con terrazzo, cucina abitabile, disipegno, bagno e due camere da letto.
Peculiarità: La soluzione gode di riscaldamento a pavimento, infissi con doppio vetro camera, porta d'ingresso blindata, posto auto, garage acquistabile a parte.
Per tutelare la privacy dei nostri clienti, l'indirizzo del presente annuncio potrebbe non corrispondere in maniera precisa all'esatta ubicazione dell'immobile.
Desideri conoscere il valore della tua casa? Chiamaci allo 0535.652477 per una valutazione gratuita e senza impegno.
Dati principali
| Riferimento | 60879441 |
| Data annuncio | 19/03/2024 |
| Contratto | Vendita |
| Tipologia | Appartamento |
| Superficie | 110 m2 |
| Locali | 3 (3 altro), 1 bagno |
| Piano | 1 di 3 totali |
Costi
| Prezzo | 230.000 € |
| Prezzo al m2 | 2.091 €/m2 |
Efficienza energetica
| Anno costruzione | 2024 |
| Riscaldamento | Autonomo |
| Classe energetica | A4 |
| Indice di prestazione energetica (EP GL, REN) | 28 kWh/m3 anno |
| Indice di prestazione energetica (EP GL, NREN) | 28 kWh/m3 anno |
Planimetrie
Video
Indirizzo e mappa
Via circonvallazione, Mirandola
Calcolo mutuo
Prezzo di vendita:
Anticipo
20,00
Mutuo
80,00
Tasso: -+
Rata: 658 al mese
I risultati sono una stima indicativa basata sui dati inseriti e non costituiscono un’offerta finanziaria.
Inserzionista
Chiama
CONTATTA

