Appartamento Settima strada, Segrate
€ 550.0005 locali in vendita
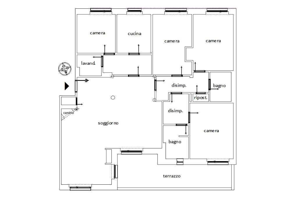
San Felice, Settima Strada - Appartamento di cinque locali, mq. 175 sito al piano primo di una piccola palazzina di soli due piani, in posizione ottimale per raggiungere comodamente a piedi e in pochi minuti i negozi offerti dalla Piazza Centro Commerciale. L'immobile presenta ampi spazi interni e ben distribuiti, dall'ingresso si accede al soggiorno doppio con camino e uscita sul terrazzo di mq. 21 e alla cucina abitabile separata, con adiacenti una camera e il bagno-lavanderia. La zona notte è divisa in due parti, la prima ospita la suite matrimoniale, con annesso il proprio bagno finestrato con vasca; nella seconda sono collocati le altre due camere, il bagno cieco con doccia e il ripostiglio. Dotato di pavimenti in parquet e aria condizonata nella zona giorno, infissi in pvc con doppi vetri, caloriferi nuovi con termovalvole e ripartitori, porta blindata. Annessa cantina, disponibile Box Doppio.
Libero
Possibilità di realizzazione di due appartamenti distinti e funzionalmente indipendenti ricavati da un'unica unità immobiliare, così suddivisi: un appartamento trilocale di superficie pari a circa 120 caratterizzato da ambienti ampi e razionalmente distribuiti, destinato a un'utenza residenziale medio-alta; un appartamento bilocale di superficie pari a circa 50 mq, progettato con particolare attenzione all'ottimizzazione degli spazi e alla massima fruibilità, ideale sia per l'utilizzo diretto sia per investimento a reddito.
Libero
Possibilità di realizzazione di due appartamenti distinti e funzionalmente indipendenti ricavati da un'unica unità immobiliare, così suddivisi: un appartamento trilocale di superficie pari a circa 120 caratterizzato da ambienti ampi e razionalmente distribuiti, destinato a un'utenza residenziale medio-alta; un appartamento bilocale di superficie pari a circa 50 mq, progettato con particolare attenzione all'ottimizzazione degli spazi e alla massima fruibilità, ideale sia per l'utilizzo diretto sia per investimento a reddito.
Dati principali
| Riferimento | 60876499 |
| Data annuncio | 13/03/2024 |
| Contratto | Vendita |
| Tipologia | Appartamento |
| Superficie | 175 m2 |
| Locali | 5 (5 altro), 3 bagni |
| Piano | 1 di 2 totali |
Costi
| Prezzo | 550.000 € |
| Prezzo al m2 | 3.143 €/m2 |
| Spese condominiali | € 580,00/mese |
Efficienza energetica
| Anno costruzione | 1970 |
| Riscaldamento | Centralizzato |
| Tipo Alimentazione Riscaldamento | Metano |
| Classe energetica | E |
| Indice di prestazione energetica (EP GL, REN) | 5.31 kWh/m3 anno |
| Indice di prestazione energetica (EP GL, NREN) | 165.88 kWh/m3 anno |
Planimetrie
Indirizzo e mappa
Settima strada, Segrate
Calcolo mutuo
Prezzo di vendita:
Anticipo
20,00
Mutuo
80,00
Tasso: -+
Rata: 1.573 al mese
I risultati sono una stima indicativa basata sui dati inseriti e non costituiscono un’offerta finanziaria.
Inserzionista
Chiama
CONTATTA

