Capannone Imola
€ 3.400 al mese
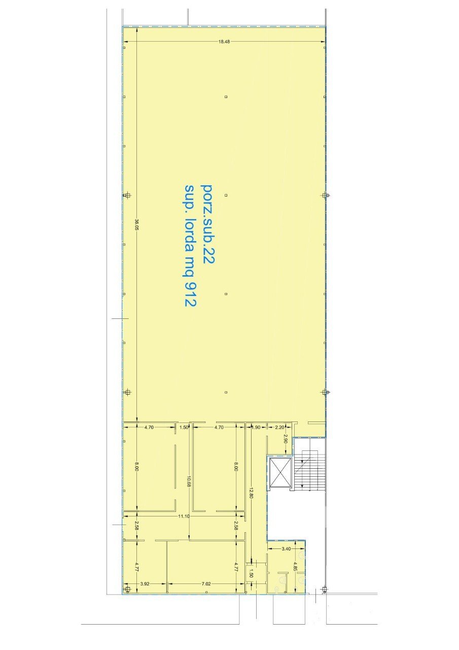
RIF. 0002 IMOLA, AFFITTIAMO IN ZONA INDUSTRIALE CAPANNONE DI MQ 712 E UFFICI DI MQ 200, PER UN TOTALE DI MQ 912, TUTTO AL PIANO TERRA CON ALTEZZA MT. 3,70 E PORTONE DI INGRESSO MT. 4 X 4; IL SOFFITTO E’ PANNELLATO E L’ALTEZZA MASSIMA PUO’ DIVENTATE DI MT. 5. RICHIESTA EURO 3.400,00 OLTRE AD IVA DI LEGGE AL MESE. RICHIEDIAMO REFERENZE
Dati principali
| Riferimento | CSI002 |
| Data annuncio | 07/03/2024 |
| Contratto | Affitto |
| Tipologia | Capannone |
| Superficie | 912 m2 |
Costi
| Prezzo | 3.400 € al mese |
Efficienza energetica
| Classe energetica | Immobile esente da certificazione energetica |
Planimetrie
Indirizzo e mappa
Imola
Inserzionista

Consulenze e Servizi Immobiliari
Via Garibaldi 1, Massa Lombarda
Mostra Telefono
Chiama
CONTATTA

