Villa Rivergaro
€ 480.000
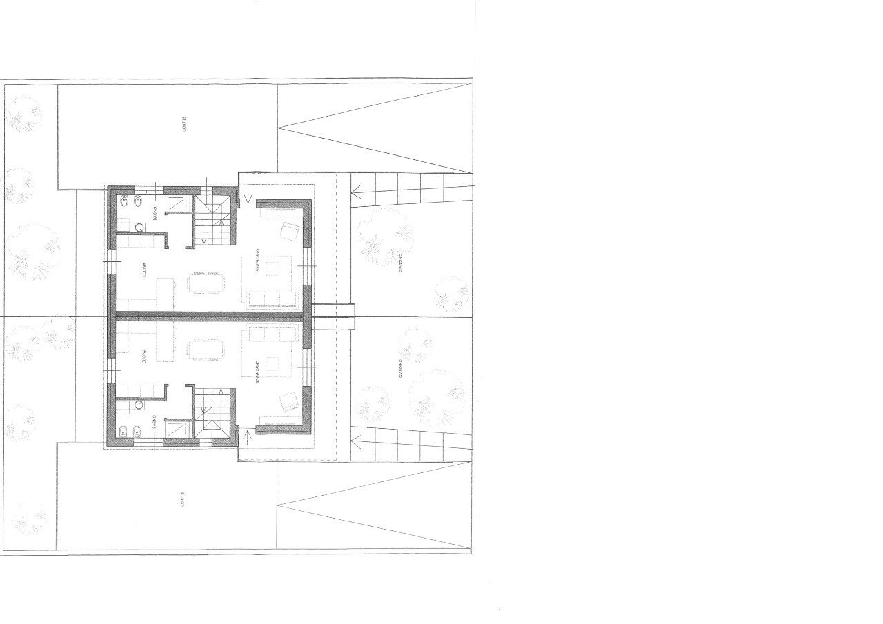
RIVERGARO - VILLA NUOVA in zona residenziale nelle immediate vicinanze del LungoTrebbia e del River Park composta da soggiorno con affaccio sul giardino, cucina, tre camere da letto, due bagni, taverna, cantina e box. Possibilità di personalizzare le finiture interne. Completa di tutti gli accessori per il risparmio energetico. Classe A4
Dati principali
| Riferimento | GAZ2238 |
| Data annuncio | 07/03/2024 |
| Contratto | Vendita |
| Tipologia | Villa |
| Superficie | 210 m2 |
| Locali | 2 bagni |
Costi
| Prezzo | 480.000 € |
| Prezzo al m2 | 2.286 €/m2 |
Efficienza energetica
| Classe energetica | A4 |
Indirizzo e mappa
Rivergaro
Calcolo mutuo
Prezzo di vendita:
Anticipo
20,00
Mutuo
80,00
Tasso: -+
Rata: 1.373 al mese
I risultati sono una stima indicativa basata sui dati inseriti e non costituiscono un’offerta finanziaria.
Inserzionista
GAZZOLA CONSULENZA IMMOBILIARE S.R.L.
Piazza Dante 42, Rivergaro
Mostra Telefono
Chiama
CONTATTA

