Negozio via Andrea Fantoni, 1, Alzano Lombardo
€ 430.000Soluzione polifunzionale ad alto potenziale
Alzano Lombardo (BG) Ottima opportunità !!! Molto grazioso e caratteristico ampio e versatile con ottime potenzialità in posizione strategica e servita inserito in contesto storico e posizione invidiabile , unica disponibilità di soluzione commerciale o ricettiva per varie attività .Ideale per attività di ristorazione gia in precedenza predisposto nel centro storico impreziosito da cortile interno ideale per un dehor estivo .investimento versatile e frazionabile se serve con due o tre accesi indipendenti ideale per un operazione immobiliare ; sviluppata su due piani piu seminterrato collegati attraverso la scala interna di accesso ad ogni piano ; Il piano terra molto caratteristico composto da ingresso , ampio open space luminoso con camino d'epoca piu locale adiacente, entrambi comunicanti con il cortile interno molto riservato ; al primo piano invece si trovano altri tre locali ampi open space con tre bagni e un montacarichi collegato al piano seminterrato , molto bene accessoriato con bagni , locale magazzino cella frigorifica , locale cantina , lavanderia , canna fumaria , montacarichi ,ecc. la destinazione d'uso puo restare commerciale o ripristinata in residenziale . ideale per un impresa edile, imprenditori e privati plurifamiliare .per info e visite agenzia Grandimora dott.ssa Milea C. tel 3342132338
Dati principali
| Riferimento | ID2050456 |
| Data annuncio | 21/02/2024 |
| Contratto | Vendita |
| Tipologia | Negozio |
| Superficie | 485 m2 |
| Piano | 3 totali |
| Uso immobile | Commerciale |
Costi
| Prezzo | 430.000 € |
| Prezzo al m2 | 887 €/m2 |
Efficienza energetica
| Riscaldamento | Autonomo |
| Classe energetica | B |
| Indice di prestazione energetica (IPE) | 862.57 kWh/m2 anno |
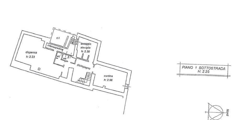
Planimetrie
Indirizzo e mappa
via Andrea Fantoni, 1, Alzano Lombardo
Calcolo mutuo
Prezzo di vendita:
Anticipo
20,00
Mutuo
80,00
Tasso: -+
Rata: 1.230 al mese
I risultati sono una stima indicativa basata sui dati inseriti e non costituiscono un’offerta finanziaria.
Inserzionista

Grandimora
Via Masone 19, Bergamo
Mostra Telefono
Mostra Cellulare
Chiama
CONTATTA

