Capannone Reggio nell'Emilia
€ 1.500.000
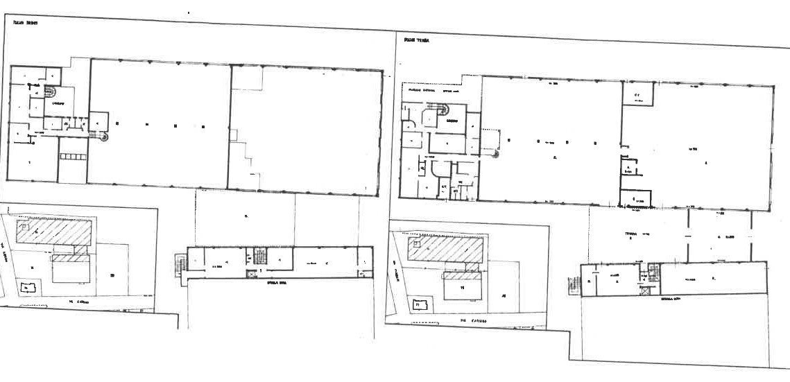
PRI1104 - PIEVE MODOLENA: Vendesi capannone di oltre 2.700 mq, di cui circa mq. 2400 di capannone e tettoie e oltre mq. 340 di uffici, vicinanze Via Emilia con ampia area cortiliva. Si precisa che l’immobile verrà consegnato previa bonifica del tetto in eternit e rifacimento dei manti di copertura. Chiediamo cortesemente, qualora interessati all’immobile in oggetto, di lasciare il recapito telefonico oltre che quello della mail, per poter essere ricontattati, grazie.
Dati principali
| Riferimento | PRI1104 |
| Data annuncio | 15/02/2024 |
| Contratto | Vendita |
| Tipologia | Capannone |
| Superficie | 2700 m2 |
| Locali | 3 bagni |
Costi
| Prezzo | 1.500.000 € |
| Prezzo al m2 | 556 €/m2 |
Efficienza energetica
| Classe energetica | Immobile esente da certificazione energetica |
Indirizzo e mappa
Reggio nell'Emilia
Calcolo mutuo
Prezzo di vendita:
Anticipo
20,00
Mutuo
80,00
Tasso: -+
Rata: 4.290 al mese
I risultati sono una stima indicativa basata sui dati inseriti e non costituiscono un’offerta finanziaria.
Inserzionista
Chiama
CONTATTA
