Villa via Monti Peloritani, 5, Montesilvano
€ 950.000Villa bifamiliare vista mare
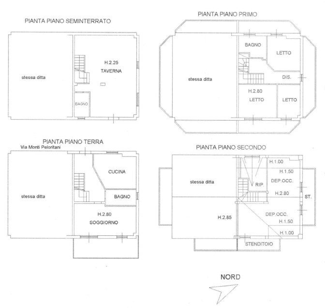
VR216 – L’Agenzia Immobiliare Perletta propone alla propria clientela una villa bifamiliare sulla prima collina di Pescara, a due passi da Santa Filomena. L’immobile, completamente recintato con passo carrabile motorizzato, è inserito in contesto residenziale, realizzato negli ultimi anni, con villini immersi nel verde, la maggior parte dei quali con vista mare. Divisa in verticale con ingressi indipendenti, i due appartamenti si sviluppano su quattro piani, ognuno dei quali di circa 70 mq utili oltre i balconi. Dotati di taverna con camino, piano giorno con cucina e soggiorno, piano notte con tre camere e sottotetto (ambiente unico); ogni piano dispone di un bagno. Una comoda scala interna in legno dalle ottime finiture unisce tutti gli ambienti. Gli impianti di riscaldamento sono a metano e molti ambienti sono dotati di climatizzazione. Corte esterna con giardino e posteggio per le auto. La costruzione realizzata negli anni ’90 in cemento armato è in ottimo stato, così come gli impianti idraulici e elettrici, in regola con le vigenti norme urbanistiche. L'esclusività e tranquillità della zona, l’aria profumata della vegetazione e lo stile di realizzazione, rendono l’immobile interessante per chi vuol regalarsi una casa da sogno. Per maggiori informazioni contattateci al numero mobile 366 3834290 - Visita il nostro sito web www.immobiliareperletta.it per trovare immobili simili. Immobiliare Perletta Via Nazionale Adriatica Nord, 288 65123 Pescara
Dati principali
| Riferimento | VR216 |
| Data annuncio | 14/02/2024 |
| Contratto | Vendita |
| Tipologia | Villa |
| Superficie | 560 m2 |
| Locali | più di 5 (6 camere da letto, 2 altro), 4 bagni, cucina abitabile |
| Piano | 3 totali |
| Tipo di costruzione | Signorile |
| Numero di balconi | 1 |
| Numero posti auto | 6 |
| Arredamento | Parziale |
Caratteristiche
Costi
| Prezzo | 950.000 € |
| Prezzo al m2 | 1.696 €/m2 |
Efficienza energetica
| Anno costruzione | 1990 |
| Stato | Ottimo |
| Riscaldamento | Autonomo |
| Classe energetica | C |
| Indice di prestazione energetica (IPE) | 175 kWh/m2 anno |
Planimetrie
Indirizzo e mappa
via Monti Peloritani, 5, Montesilvano
Calcolo mutuo
Prezzo di vendita:
Anticipo
20,00
Mutuo
80,00
Tasso: -+
Rata: 2.717 al mese
I risultati sono una stima indicativa basata sui dati inseriti e non costituiscono un’offerta finanziaria.
Inserzionista

Fausto Perletta
Via Nazionale Adriatica Nord 288, Pescara
Mostra Cellulare
Chiama
CONTATTA

