Ufficio Reggio nell'Emilia
€ 195.000
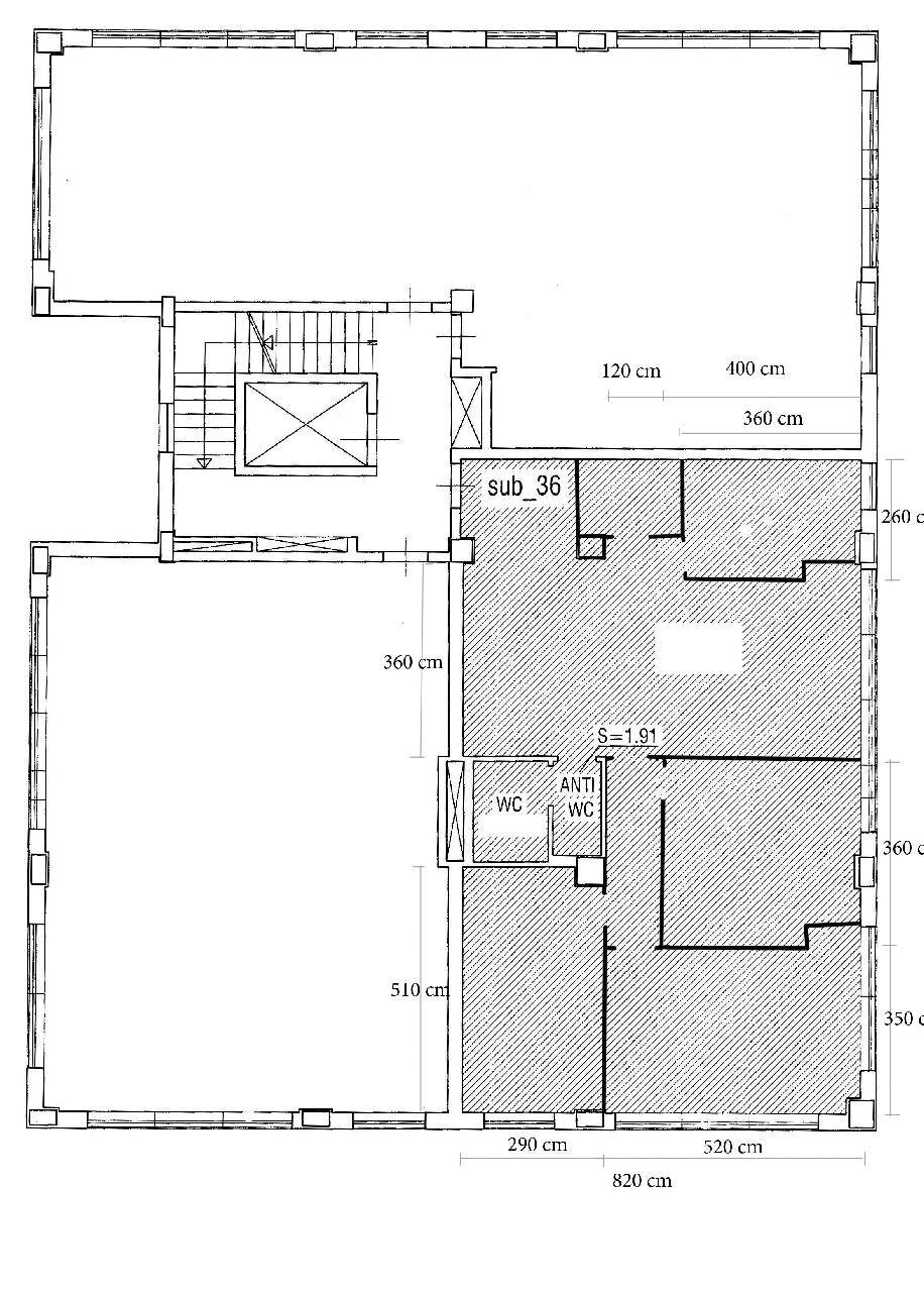
PRI470 - BUCO DEL SIGNORE: Nella zona Industriale, proponiamo bell’ufficio di 120 mq molto silenzioso servito da mezzi urbani (centro, stazione e direttamente alla Alta Velocità ) composto da 1 open space/ingresso da 4/5 scrivanie, 2 uffici da 1/2 scrivanie, 1 ufficio da 3/4 scrivanie, 1 sala riunioni, 1 stanza/magazzino, bagno con antibagno. L’immobile è dotato di pavimento galleggiante, pareti esterne ventilate, cablaggi, ottima illuminazione naturale, Orientato ad est e a sud, ampio parcheggio, sala riunioni insonorizzata, impianto di illuminazione ed elettrico a norma ergonomica, riscaldamento e condizionamento autonomo. Classe Energetica B. Disponibilità immediata.
Dati principali
| Riferimento | PRI470 |
| Data annuncio | 13/02/2024 |
| Contratto | Vendita |
| Tipologia | Ufficio |
| Superficie | 120 m2 |
| Locali | 1 bagno |
| Piano | 3 |
Costi
| Prezzo | 195.000 € |
| Prezzo al m2 | 1.625 €/m2 |
Efficienza energetica
| Classe energetica | Immobile esente da certificazione energetica |
Planimetrie
Indirizzo e mappa
Reggio nell'Emilia
Calcolo mutuo
Prezzo di vendita:
Anticipo
20,00
Mutuo
80,00
Tasso: -+
Rata: 558 al mese
I risultati sono una stima indicativa basata sui dati inseriti e non costituiscono un’offerta finanziaria.
Inserzionista
Chiama
CONTATTA


