Villa Bifamiliare Ravenna
€ 330.000
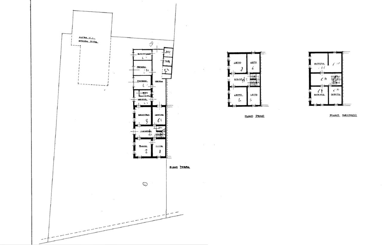
Vendiamo a Castiglione di Ravenna, in pieno centro cittadino, splendida villa di ampie metrature su lotto di quasi 1600 mq. L’immobile, disposto su tre livelli, si compone di un ingresso, soggiorno, sala da pranzo, cucina, bagno e zona servizi/lavanderia al piano terra; salendo la scala interna si accede al primo piano dove sono presenti quattro camere da letto matrimoniali. Al piano secondo troviamo ampia soffitta suddivisa in quattro ambienti. Completa l’offerta un capannone artigianale di 160 mq. L’immobile necessita di qualche lavori di ristrutturazione.
Dati principali
| Riferimento | BRB80 |
| Data annuncio | 11/02/2024 |
| Contratto | Vendita |
| Tipologia | Villa Bifamiliare |
| Superficie | 560 m2 |
| Locali | 1 bagno |
Costi
| Prezzo | 330.000 € |
| Prezzo al m2 | 589 €/m2 |
Efficienza energetica
| Classe energetica | G |
Planimetrie
Indirizzo e mappa
Ravenna
Calcolo mutuo
Prezzo di vendita:
Anticipo
20,00
Mutuo
80,00
Tasso: -+
Rata: 944 al mese
I risultati sono una stima indicativa basata sui dati inseriti e non costituiscono un’offerta finanziaria.
Inserzionista
Barbieri Immobiliare
V.le Volturno, 27, Cervia
Mostra Telefono
Chiama
CONTATTA

