Ufficio via Alcide De Gasperi, 106, Rho
€ 37.500 al meseIMMOBILE DI PRESTIGIO - CAPANNONE CON UFFICI E LABORATORI
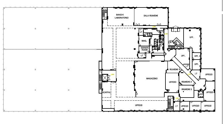
(IMMOBILE DI PRESTIGIO - CAPANNONE CON UFFICI E LABORATORI - FRONTE STRADA DI PASSAGGIO - COMODITA' MEZZI PUBBLICI) La proprietà si trova nella zona industriale di Mazzo di Rho (MI), a pochi minuti di strada dai mezzi pubblici quali la fermata metropolitana di Rho - Fiera e la fermata del treno. La zona è inoltre molto comoda con gli svincoli autostradali e con l'accesso alla tangenziale ovest. La superficie è di circa 7500 mq (piano terra di 5000 mq e piano primo di 2500 mq) comprensiva di zona stoccaggio, laboratori e uffici . La zona stoccaggio ,di circa 1800 mq, è fornita di impianti elettrici, illuminazione, riscaldamento e impianto antincendio con sprinkler, è servita da diversi portoni d'accesso è ha un'altezza utile sotto trave di 7,5 metri. Sempre al piano terra, collegata alla zona di stoccaggio, si sviluppano i locali laboratori e magazzini per ulteriori 3200 mq, comprensivi di locali tecnici, mensa, spogliatoi e servizi. Salendo al primo piano troviamo 2500 mq di uffici, in parte suddivisi in pareti mobili e in parti in conformazione open-space. Lo stabile è fornito di tutta l'impiantistica necessaria e si presenta in ottime condizioni, ideale per società multinazionali che cercano rappresentanza e visibilità. Possibilità di personalizzazioni in base alle esigenze. SCOPRI ALTRE SOLUZIONI SUL NOSTRO SITO WWW.CASAEINDUSTRIA.IT I nostri servizi: - Intermediazione immobiliare; - valutazioni per la locazione e la vendita di immobili; - stesura e registrazione contratti; - certificazioni energetiche; - finanziamenti su misura; - progettazione di edifici civili ed industriali; - calcoli strutture in cemento armato, legno e acciaio; - perizie, collaudi, asseverazioni statiche; - direzione lavori; - supervisione in cantiere nella fase di realizzazione; - assistenza alle imprese (tracciamenti planimetrici ed altimetrici, contabilità di cantiere); - computi metrici; - verifica dispersioni termiche degli edifici (L 10/91); - progetto impianti; - operazioni topografiche di rilevamento completo; - operazioni catastali (tipi di frazionamento, tipi mappali, denunce di nuova costruzione e variazione con acquisizione della rendita catastale, volture).
Dati principali
| Riferimento | ID2034330 |
| Data annuncio | 10/02/2024 |
| Contratto | Affitto |
| Tipologia | Ufficio |
| Superficie | 7500 m2 |
| Piano | 2 totali |
| Tipo di costruzione | Lusso |
| Uso immobile | Commerciale |
Costi
| Prezzo | 37.500 € al mese |
| Spese condominiali | € 1000,00/mese |
Efficienza energetica
| Riscaldamento | Autonomo |
| Classe energetica | E |
| Indice di prestazione energetica (IPE) | 65 kWh/m2 anno |
Planimetrie
Indirizzo e mappa
via Alcide De Gasperi, 106, Rho
Inserzionista

Casa & Industria - Immobili Per L'Impresa
VIA COMO 3, Lainate
Mostra Telefono
Chiama
CONTATTA

