Appartamento Cervia
€ 505.000
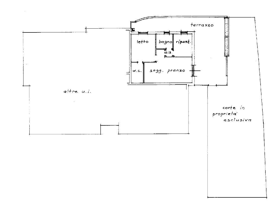
Proponiamo in vendita, nella zona centrale di Milano Marittima, appartamento situato al piano terra. L’immobile collocato in una palazzina di recente costruzione, si compone di entrata indipendente su un ampio giardino privato. Proseguendo verso l’interno dell’immobile si accede alla zona giorno composta di salotto con angolo cottura, la zona notte si compone di camera da letto matrimoniale con bagno in camera dotato di box doccia, dal disimpegno si arriva al secondo bagno finestrato con box doccia e alla cameretta singola. Completa la soluzione il garage al seminterrato, il locale caldaia/lavanderia all’esterno e la possibilità di parcheggiare l’auto nella corte interna. L’immobile situato nel pieno centro della località è adiacente a tutti i servizi principali e rimane a 100 Mt. dal mare. Soluzione ideale come investimento per chi cerca un’immobile nel cuore di Milano Marittima. RIF 527
Dati principali
| Riferimento | BRB527 |
| Data annuncio | 31/01/2024 |
| Contratto | Vendita |
| Tipologia | Appartamento |
| Superficie | 85 m2 |
| Locali | 2 bagni |
Costi
| Prezzo | 505.000 € |
| Prezzo al m2 | 5.941 €/m2 |
| Spese condominiali | € 60,00/mese |
Efficienza energetica
| Classe energetica | Immobile esente da certificazione energetica |
Planimetrie
Indirizzo e mappa
Cervia
Calcolo mutuo
Prezzo di vendita:
Anticipo
20,00
Mutuo
80,00
Tasso: -+
Rata: 1.444 al mese
I risultati sono una stima indicativa basata sui dati inseriti e non costituiscono un’offerta finanziaria.
Inserzionista
Barbieri Immobiliare
V.le Volturno, 27, Cervia
Mostra Telefono
Chiama
CONTATTA

