Ufficio Reggio nell'Emilia
€ 250.000
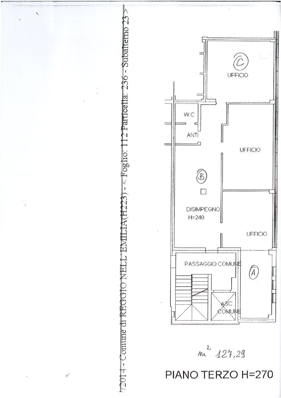
PRI980 - UFFICIO-STUDIO CON ARCHIVIO: Prestigioso ufficio di 143mq distribuiti su due piani. In contesto direzionale, in ottime condizioni nei pressi del centro storico e Tribunale. L’immobile è così composto: al terzo piano 5 vani completi di arredamento e archivio di pertinenza posto al primo piano di 31mq. Al terzo piano, raggiungibile con ascensore-scale, troviamo (i restanti 127mq) disposti in ampio disimpegno, zona segreteria, bagno con antibagno, 3 uffici spaziosi. E’ presente di pertinenza 1 posto auto coperto doppio in profondità e altri 3 posti auto coperti. L’ufficio è completo di tutti gli impianti tecnologici in ottimo stato di efficienza. Posizione comoda a tutti i principali servizi.
Dati principali
| Riferimento | PRI980 |
| Data annuncio | 27/01/2024 |
| Contratto | Vendita |
| Tipologia | Ufficio |
| Superficie | 143 m2 |
| Locali | 1 bagno |
| Piano | 3 |
Costi
| Prezzo | 250.000 € |
| Prezzo al m2 | 1.748 €/m2 |
Efficienza energetica
| Classe energetica | Immobile esente da certificazione energetica |
Planimetrie
Indirizzo e mappa
Reggio nell'Emilia
Calcolo mutuo
Prezzo di vendita:
Anticipo
20,00
Mutuo
80,00
Tasso: -+
Rata: 715 al mese
I risultati sono una stima indicativa basata sui dati inseriti e non costituiscono un’offerta finanziaria.
Inserzionista
Chiama
CONTATTA


