Cascina Via Busca, 76, Caraglio
€ 85.000
CARAGLIO – Via Busca.
A pochi passi dal centro di Caraglio proponiamo cascina libera su tre lati con vari locali accessori e terreno.
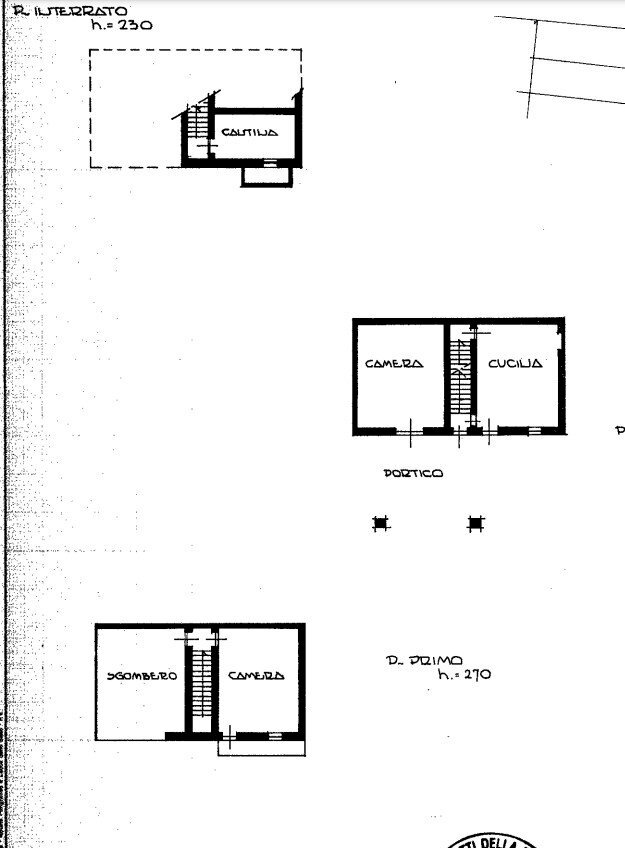
L'immobile si trova al momento in uno stato originale e necessita di una ristrutturazione completa garantendo la possibilità di personalizzazione sotto qualsiasi aspetto. Il corpo principale è costituito da quattro ampi locali distribuiti su due livelli fuori terra e collegati da scala interna oltre ad un cantina al piano interrato. Sul lato sinistro c'è un ampio locale di 114 mq calpestabili accatastato al momento come magazzino e fienile che può essere convertito in civile abitazione per garantire una metratura più ampia della zona abitativa.
A completare la soluzione vi sono un'ampia tettoia di 60 mq calpestabili e un magazzino di 58 mq, quest'ultimo suddiviso in due locali di sgombero e una tettoia aperta oltre ad un piccolo bagno di servizio.
Compresi nella vendita vi sono 3219 mq di terreno seminativo irriguo attualmente piantumati a meliga. Vi è la possibilità di acquistare ad una cifra da concordare ulteriori 4520 mq di terreno.
Il cortile può essere chiuso e recintato e non vi sono servitù passive gravanti sulla proprietà.
Le potenzialità di questa proprietà sono infinite: dalla realizzazione di una residenza di prestigio, alla creazione di una struttura ricettiva, come un agriturismo o un bed and breakfast, fino alla realizzazione di uno spazio per attività creative. L'ampio terreno circostante offre inoltre la possibilità di realizzare un giardino, un orto o una piscina, per vivere all'aria aperta e godere appieno della tranquillità della campagna.
PER QUALSIASI INFORMAZIONE NON ESITATE A CONTATTARCI. SIAMO DISPONIBILI A FAR VISIONARE L'IMMOBILE DAL LUNEDI'ALLA DOMENICA.
Seguiteci sui social:
Facebook (https://www.facebook.com/GruppoMonvisoImmobiliare)
Twitter (https://twitter.com/GruppoMonviso)
Instagram (https://www.instagram.com/gruppomonvisoimmobiliare)
A pochi passi dal centro di Caraglio proponiamo cascina libera su tre lati con vari locali accessori e terreno.
L'immobile si trova al momento in uno stato originale e necessita di una ristrutturazione completa garantendo la possibilità di personalizzazione sotto qualsiasi aspetto. Il corpo principale è costituito da quattro ampi locali distribuiti su due livelli fuori terra e collegati da scala interna oltre ad un cantina al piano interrato. Sul lato sinistro c'è un ampio locale di 114 mq calpestabili accatastato al momento come magazzino e fienile che può essere convertito in civile abitazione per garantire una metratura più ampia della zona abitativa.
A completare la soluzione vi sono un'ampia tettoia di 60 mq calpestabili e un magazzino di 58 mq, quest'ultimo suddiviso in due locali di sgombero e una tettoia aperta oltre ad un piccolo bagno di servizio.
Compresi nella vendita vi sono 3219 mq di terreno seminativo irriguo attualmente piantumati a meliga. Vi è la possibilità di acquistare ad una cifra da concordare ulteriori 4520 mq di terreno.
Il cortile può essere chiuso e recintato e non vi sono servitù passive gravanti sulla proprietà.
Le potenzialità di questa proprietà sono infinite: dalla realizzazione di una residenza di prestigio, alla creazione di una struttura ricettiva, come un agriturismo o un bed and breakfast, fino alla realizzazione di uno spazio per attività creative. L'ampio terreno circostante offre inoltre la possibilità di realizzare un giardino, un orto o una piscina, per vivere all'aria aperta e godere appieno della tranquillità della campagna.
PER QUALSIASI INFORMAZIONE NON ESITATE A CONTATTARCI. SIAMO DISPONIBILI A FAR VISIONARE L'IMMOBILE DAL LUNEDI'ALLA DOMENICA.
Seguiteci sui social:
Facebook (https://www.facebook.com/GruppoMonvisoImmobiliare)
Twitter (https://twitter.com/GruppoMonviso)
Instagram (https://www.instagram.com/gruppomonvisoimmobiliare)
Dati principali
| Riferimento | CR023 |
| Data annuncio | 27/01/2024 |
| Contratto | Vendita |
| Tipologia | Cascina |
| Superficie | 80 m2 |
| Locali | 4 (2 camere da letto, 2 altro), cucina abitabile |
| Piano | Su più livelli, 3 totali |
| Tipo di costruzione | Signorile |
| Occupato | Libero |
| Numero di balconi | 1 |
| Numero box | 3 |
| Box auto | Triplo |
| Arredamento | Completo |
| Lati liberi | Tre |
| Impianto TV | Singolo |
Caratteristiche
Costi
| Prezzo | 85.000 € |
| Prezzo al m2 | 1.063 €/m2 |
Efficienza energetica
| Anno costruzione | 1900 |
| Stato | Da ristrutturare |
| Riscaldamento | Autonomo |
| Tipo Impianto Di Riscaldamento | a stufa |
| Tipo Alimentazione Riscaldamento | Altro |
| Infissi esterni | Vetro / Legno |
| Classe energetica | G |
| Indice di prestazione energetica (IPE) | 871.25 kWh/m2 anno |
Planimetrie
Indirizzo e mappa
Via Busca, 76, Caraglio
Calcolo mutuo
Prezzo di vendita:
Anticipo
20,00
Mutuo
80,00
Tasso: -+
Rata: 243 al mese
I risultati sono una stima indicativa basata sui dati inseriti e non costituiscono un’offerta finanziaria.
Inserzionista

Gruppo Monviso Immobiliare
Via Roma 24, Bagnolo Piemonte
Mostra Telefono
Chiama
CONTATTA

