Villa corso Bernardo Leone, 20Bis, Seborga
€ 419.000
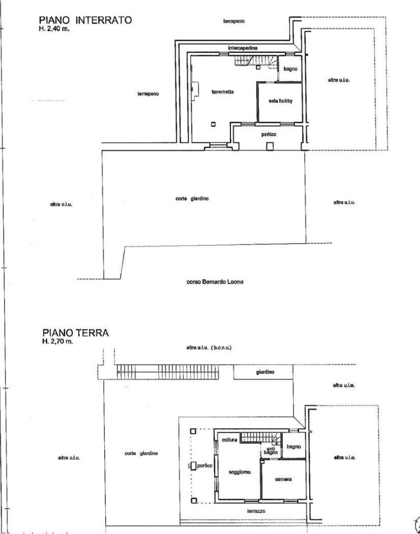
Seborga, proponiamo una prestigiosa villa semi-indipendente di 126 metri quadrati, arricchita da una vista incantevole sul mare. Questa residenza vanta un giardino di circa 110 metri quadrati, circondato da porticati che conducono a una spaziosa terrazza di 100 metri quadrati. L'abitazione, pensata per garantire il massimo comfort, dispone di due accoglienti camere da letto, una cucina abitabile, nonché di un ampio salone dotato di camino, che aggiunge un tocco di calore e raffinatezza all'ambiente. I due bagni, di cui uno con bagno turco e aromaterapia, offrono un lusso ulteriore, creando uno spazio di relax e benessere. Questa villa è completa di moderni comfort, tra cui aria condizionata, impianto d'allarme per garantire la sicurezza dei residenti, e due comodi posti auto per la massima praticità.
Dati principali
| Riferimento | BL453 |
| Data annuncio | 22/01/2024 |
| Contratto | Vendita |
| Tipologia | Villa |
| Superficie | 126 m2 |
| Locali | 5 (2 camere da letto, 3 altro), 2 bagni, cucina abitabile |
| Piano | 2 totali |
| Tipo di costruzione | Media |
| Numero di terrazzi | 1 |
| Numero di balconi | 1 |
| Numero posti auto | 1 |
| Arredamento | Parziale |
Caratteristiche
Costi
| Prezzo | 419.000 € |
| Prezzo al m2 | 3.325 €/m2 |
Efficienza energetica
| Stato | Buono |
| Riscaldamento | Autonomo |
| Classe energetica | G |
| Indice di prestazione energetica (IPE) | 235 kWh/m2 anno |
Planimetrie
Indirizzo e mappa
corso Bernardo Leone, 20Bis, Seborga
Calcolo mutuo
Prezzo di vendita:
Anticipo
20,00
Mutuo
80,00
Tasso: -+
Rata: 1.198 al mese
I risultati sono una stima indicativa basata sui dati inseriti e non costituiscono un’offerta finanziaria.
Inserzionista

Studio B Immobiliare snc
VIA MIRANDA 7/c, Seborga
Mostra Telefono
Chiama
CONTATTA

