Negozio via Alessandro Roccavilla, 2, Biella
€ 900 al meseBiella Via Roccavilla
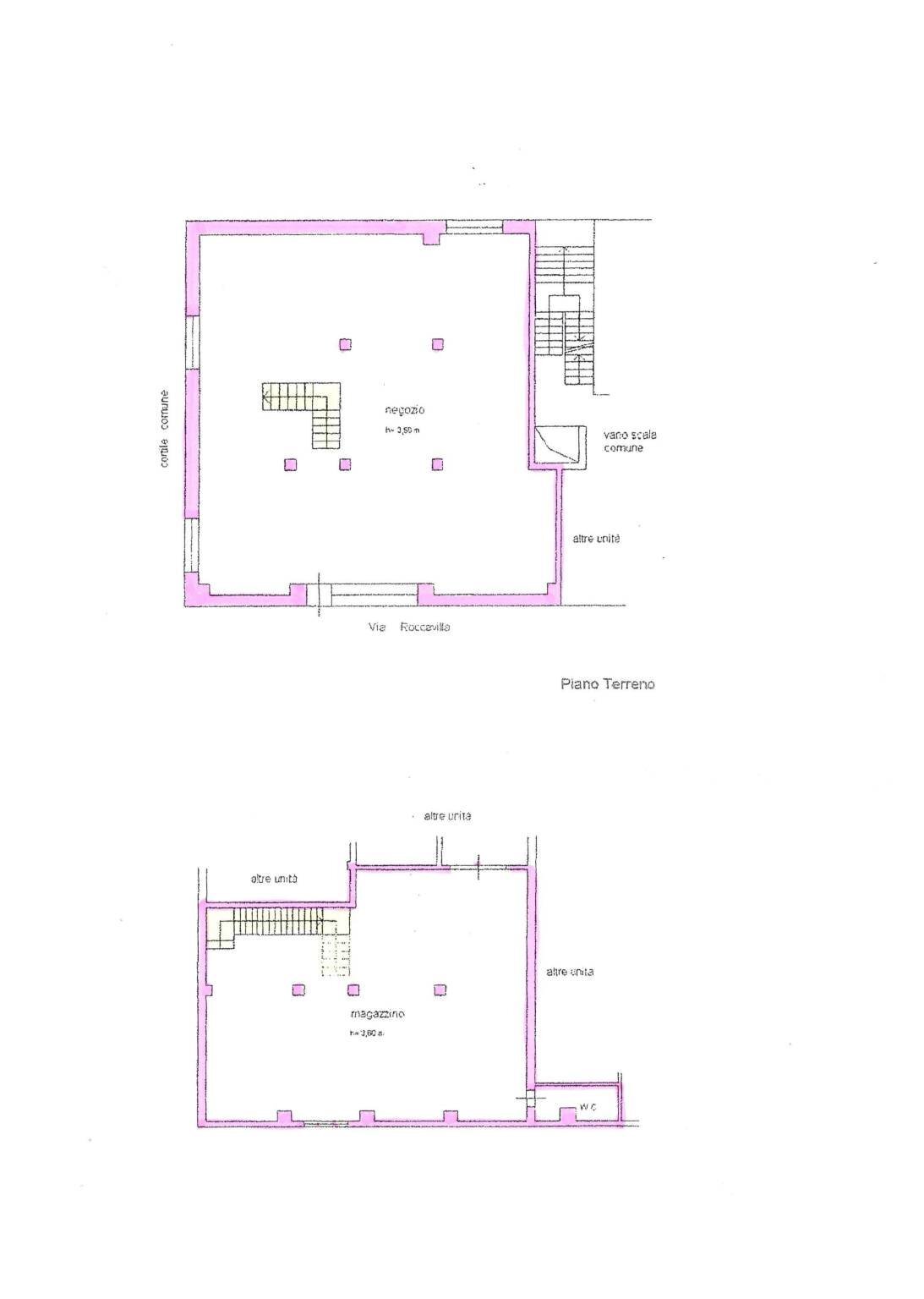
Biella Via Roccavilla affittiamo negozio con un’ ampia vetrina fronte piazza di complessivi mq. 173 ca. composto da doppio ingresso, un ampio vano unico e scala di accesso al piano seminterrato ad uso magazzino di mq. 113 ca. composto da un ampio vano unico, antibagno e bagno. Ampia autorimessa. Riscaldamento semi-autonomo. Libero subito. Prezzo Euro 900 mensili PRESTAZIONE ENERGETICA IN CORSO
Dati principali
| Riferimento | ID1994159 |
| Data annuncio | 19/01/2024 |
| Contratto | Affitto |
| Tipologia | Negozio |
| Superficie | 286 m2 |
| Piano | 2 totali |
| Uso immobile | Commerciale |
Costi
| Prezzo | 900 € al mese |
Efficienza energetica
| Riscaldamento | Centralizzato |
| Classe energetica | Immobile esente da certificazione energetica |
Planimetrie
Indirizzo e mappa
via Alessandro Roccavilla, 2, Biella
Inserzionista
Chiama
CONTATTA


