Villa Via Reano, Rivoli
€ 435.000Bifamiliare in vendita
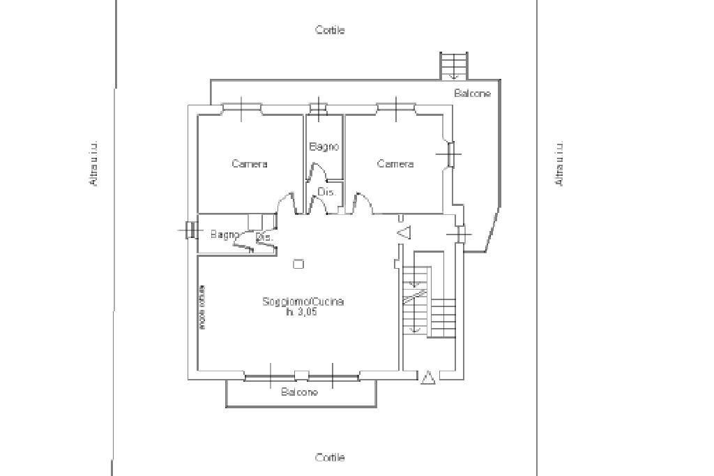
VIA REANO: In zona tranquilla immersa nel verde della collina morenica, villa indipendente su quattro lati di recente e curata ristrutturazione. Al piano terreno, box doppio, ampia tavernetta, locale lavanderia e vari locali di sgombero. Al piano primo, ampia zona giorno con cucina a vista dotata di grandi vetrate da cui ammirare il panorama delle montagne. La zona notte, allo stesso piano, è composta da due camere da letto e due bagni completi. Al piano superiore, collegato tramite vano scala, mini appartamento con travi a vista data la notevole altezza, dotato di due camere da letto, bagno e balcone verandato. La proprietà è completata da un terreno di circa 1000 mq. Le caratteristiche di questa casa ne fanno un'ottima opportunità d'acquisto per chi cerca una soluzione abitativa di qualità.
Dati principali
| Riferimento | 60843050 |
| Data annuncio | 08/01/2024 |
| Contratto | Vendita |
| Tipologia | Villa |
| Superficie | 236 m2 |
| Locali | più di 5 (8 altro), 4 bagni |
| Piano | 1 di 2 totali |
| Numero posti auto | 2 |
Costi
| Prezzo | 435.000 € |
| Prezzo al m2 | 1.843 €/m2 |
Efficienza energetica
| Anno costruzione | 1970 |
| Riscaldamento | Autonomo |
| Tipo Alimentazione Riscaldamento | Metano |
| Classe energetica | E |
| Indice di prestazione energetica (EP GL, REN) | 3.02 kWh/m3 anno |
| Indice di prestazione energetica (EP GL, NREN) | 261.57 kWh/m3 anno |
Planimetrie
Video
Indirizzo e mappa
Via Reano, Rivoli
Calcolo mutuo
Prezzo di vendita:
Anticipo
20,00
Mutuo
80,00
Tasso: -+
Rata: 1.244 al mese
I risultati sono una stima indicativa basata sui dati inseriti e non costituiscono un’offerta finanziaria.
Inserzionista
Chiama
CONTATTA

