Appartamento Occhiobello
€ 220.000
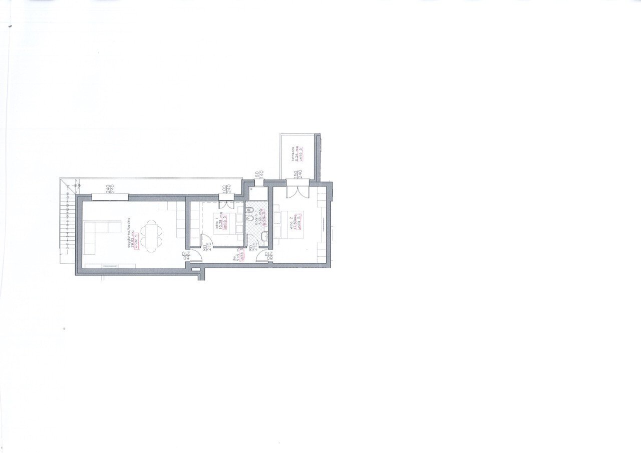
Nel cuore del paese e a due passi dalla piazza, proponiamo APPARTAMENTO AL PIANO PRIMO ED ULTIMO, dotato di ogni confort nell’ottica del risparmio energetico, così composto: garage e giardino privato al piano terra, ingresso nell’ampio soggiorno con zona cottura (30 mq), disimpegno, n. 2 letto (una doppia e una matrimoniale), terrazzo, bagno con doccia. In classe energetica A antisismica, l’immobile verrà venduto completo di impianto fotovoltaico con pompa di calore e sarà dotato di riscaldamento a pavimento, predisposizione alla climatizzazione, infissi con vetro basso emissivo antisfondamento, serramenti esterni in alluminio; ampio capitolato di pavimenti-rivestimenti in gres porcellanato. Possibilità di personalizzare gli spazi interni. Per maggiori informazioni contattate l’ufficio BM Gruppo Immobiliare di S.M.Maddalena.
Dati principali
| Riferimento | BMG298 |
| Data annuncio | 29/12/2023 |
| Contratto | Vendita |
| Tipologia | Appartamento |
| Superficie | 110 m2 |
| Locali | 1 bagno |
| Piano | 1 |
Costi
| Prezzo | 220.000 € |
| Prezzo al m2 | 2.000 €/m2 |
Efficienza energetica
| Classe energetica | A |
| Indice di prestazione energetica (IPE) | 13 kWh/m2 anno |
Planimetrie
Indirizzo e mappa
Occhiobello
Calcolo mutuo
Prezzo di vendita:
Anticipo
20,00
Mutuo
80,00
Tasso: -+
Rata: 629 al mese
I risultati sono una stima indicativa basata sui dati inseriti e non costituiscono un’offerta finanziaria.
Inserzionista
LA TORRE IMMOBILIARE
Via Porta Reno, 64, Ferrara
Mostra Telefono
Chiama
CONTATTA

