Capannone strada Statale Destra Sesia, 24, Lenta
€ 550.000Capannone con uffici a Gattinara (VC)
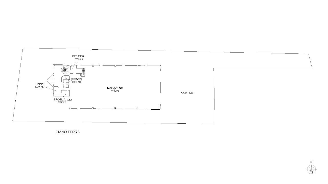
Situato tra i centri abitati dei comuni di Gattinara e Lenta, in provincia di Vercelli, capannone artigianale in vendita con area e terreno circostante, uffici arredati e soppalco interno. L’immobile ha affaccio diretto sulla strada provinciale 594 tra Gattinara e Lenta. Metrature: – capannone mq.924 – soppalco mq.20 – uffici mq.222 – area pertinenziale/terreno mq.2341 – terreno circostante e adiacente mq.2964 Nessuna spesa comune o di carattere condominiale. Costruzione del 2004, con finiture ed impiantistica moderne e funzionali. Il capannone ha destinazione artigianale, di circa mq.924, con manufatto prefabbricato comprensivo di impianto elettrico a norma, illuminazione completa, impianto antincendio, tre portoni sezionali di cui uno elettrificato, pavimentazione industriale in cemento lisciato ed impianto antifurto. L’altezza massima sfruttabile è di mt.7,00. L’immobile è in ottimo stato, con manutenzione delle finiture e degli impianti costante e perfetta. Al suo interno, il capannone ha un grande soppalco realizzato con struttura autoportante in ferro ed altezza di MT.3,00 ideale per archivio e magazzino. Al piano primo, una serie di locali sono stati adibiti ad uffici, ideali quali punto di rappresentanza dell’azienda, arredati con mobili di design dal grande livello qualitativo. Complessivamente la zona uffici è di mq.222 disposta su due piani, ed è composta da: al piano terra, ingresso open-space, grande zona operativa, disimpegno con antibagno, 4 servizi igienici e zona spogliatoio; al piano primo, un grande corridoio disimpegna ad una sala riunioni molto bella, e due grandi uffici direzionali, oltre a servizi igienici, ripostiglio ed archivio. I divisori dei vari ambienti sono stati realizzati mediante posa di serramenti in alluminio satinato con grandi vetrate con tende orientabili motorizzate ad incasso. La pavimentazione della zona uffici (nei piani terra/primo) è in lastre galleggianti con finitura lamellare di legno in essenza rovere. L’arrivo al piano primo avviene per mezzo di una scala realizzata in cemento bianco lucidato. La diffusione del calore nei vari ambienti avviene grazie ad un generatore industriale a metano marca Viessman. La zona reception/uffici ai piani terreno e primo è stata climatizzata, con una pompa di calore a parte per il condizionamento, che è in grado di provvedere al raffrescamento dei vari ambienti, ciascuno, in modo autonomo. La facciate del capannone, nella zona fronte strada, sono state abbellite con vetrate a specchio ed elementi di pannellature decorative, oltre ad una illuminazione di grande effetto. L’area esterna è stata in parte pavimentata, in parte asfaltata ed in parte lasciata a verde (mq.2341 circa). L’area è stata completamente recintata con palificazioni in cemento su tutto il perimetro e comprende anche i vari punti a colonna quali antincendio dislocati ovunque. All’esterno della recinzione, la proprietà ha acquistato in un periodo successivo un altro lotto di terreno di quasi mq.2
Dati principali
| Riferimento | 701 |
| Data annuncio | 23/11/2023 |
| Contratto | Vendita |
| Tipologia | Capannone |
| Superficie | 1689 m2 |
| Piano | 2 totali |
| Uso immobile | Commerciale ed Industriale |
Costi
| Prezzo | 550.000 € |
| Prezzo al m2 | 326 €/m2 |
Efficienza energetica
| Classe energetica | F |
| Indice di prestazione energetica (IPE) | 180 kWh/m2 anno |
Planimetrie
Indirizzo e mappa
strada Statale Destra Sesia, 24, Lenta
Calcolo mutuo
Prezzo di vendita:
Anticipo
20,00
Mutuo
80,00
Tasso: -+
Rata: 1.573 al mese
I risultati sono una stima indicativa basata sui dati inseriti e non costituiscono un’offerta finanziaria.
Inserzionista

Immobiliare Ca' Nova
Via Gramsci 18, Borgomanero
Mostra Telefono
Chiama
CONTATTA

