
Per vedere altre immagini,
prova a chiederle all'inserzionista
prova a chiederle all'inserzionista
Magazzino Brescia
€ 100.000Via Lamarmora ampio magazzino con 3 ingressi
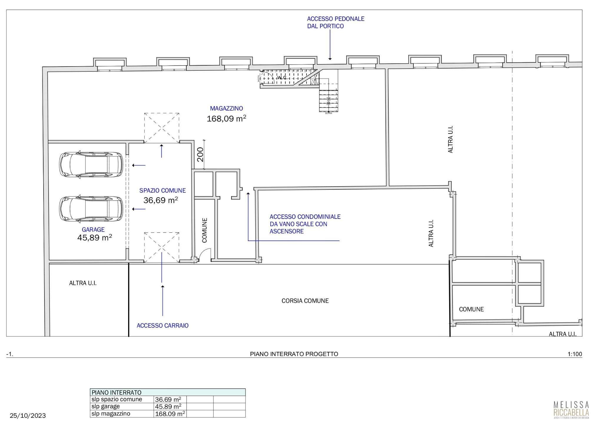
Magazzino di circa 170 mq al piano interrato, h 3,50 circa, con 3 ingressi: 1 da scala portico, 1 da ascensore e scala interna, 1 da rampa accesso garage. Euro 100.000 Possibilita' Box Intesa Commerciale 030-2423333 Cod. U25 Intesa Commerciale , opera da decenni sul mercato immobiliare e, forte delle migliaia di affari conclusi senza alcun contenzioso, rappresenta una soluzione solida e professionale a qualsiasi esigenza di acquisto, vendita immobiliare in città e provincia. La visione strategica del business, da sempre prerogativa del management, permette ad Intesa Commerciale di operare in perfetto equilibrio fra dinamismo ed oculatezza nelle valutazioni: sono queste le caratteristiche che hanno permesso all'agenzia di eccellere nel settore dell' intermediazione e della compravendita immobiliare. Intesa Commerciale è sinonimo di serietà e professionalità nell'offerta di un servizio completo e personalizzato, un team di personale qualificato ed esperto che garantisce la migliore assistenza e competenza dalle fasi preliminari di consulenza, ricerca e mediazione, alle fasi finali di stipula del contratto e al rogito notarile.
Dati principali
| Riferimento | U25 |
| Data annuncio | 14/11/2023 |
| Contratto | Vendita |
| Tipologia | Magazzino |
| Superficie | 170 m2 |
| Piano | 1 di 4 totali |
| Tipo di costruzione | Signorile |
Caratteristiche
Costi
| Prezzo | 100.000 € |
| Prezzo al m2 | 588 €/m2 |
| Spese condominiali | € 50,00/mese |
Efficienza energetica
| Classe energetica | Immobile esente da certificazione energetica |
Indirizzo e mappa
Brescia
Annuncio senza mappa,
prova a chiedere la posizione all'inserzionista
prova a chiedere la posizione all'inserzionista
Calcolo mutuo
Prezzo di vendita:
Anticipo
20,00
Mutuo
80,00
Tasso: -+
Rata: 286 al mese
I risultati sono una stima indicativa basata sui dati inseriti e non costituiscono un’offerta finanziaria.
Inserzionista

Intesa Commerciale
Via Cefalonia 55, Brescia
Mostra Telefono
Chiama
CONTATTA