Quadrilocale Via Mario Greco, Martina Franca
€ 130.000Rif. B32 Appartamento in Vendita a Martina Franca
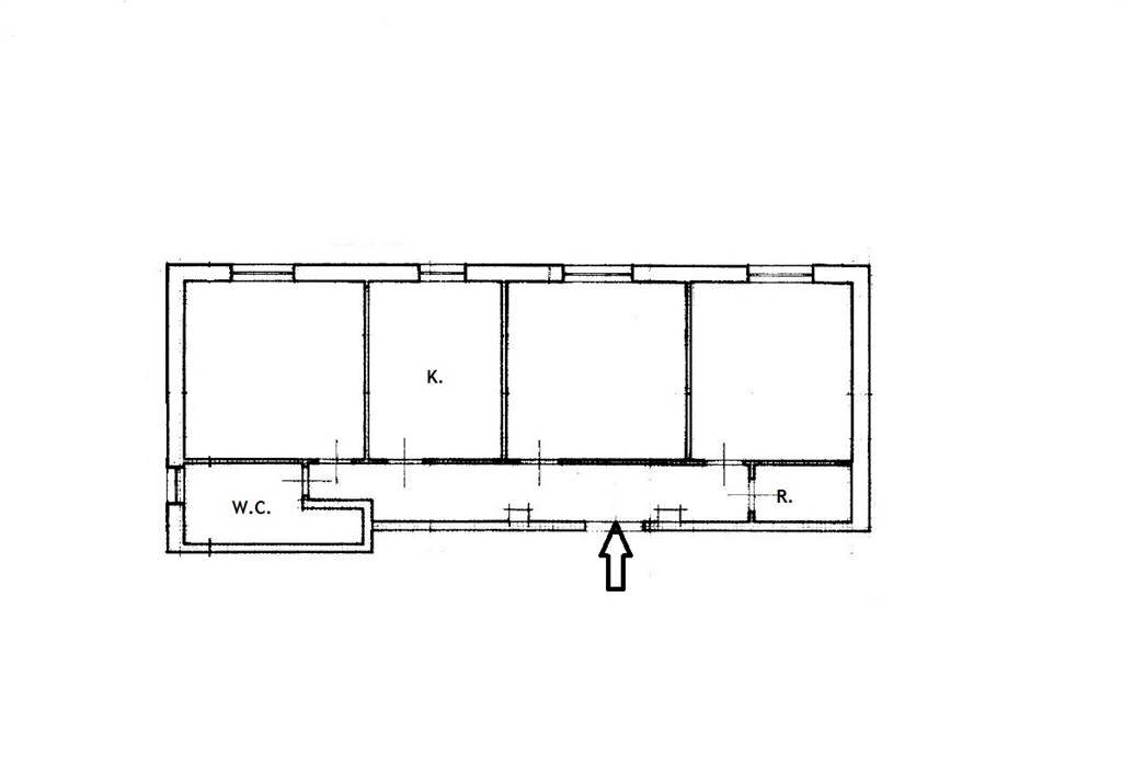
Rif. B32 #myprojectcasa propone in vendita appartamento al quarto piano con ascensore. L'appartamento è composto da ingresso in corridoio, due ampie camere da letto, cucina abitabile, salotto, comodo bagno con vasca e ampio ripostiglio. L'immobile, molto luminoso, è provvisto di doppi infissi, condizionamento, termo autonomo. Balconi con vista Valle d'Itria. Per ulteriori informazioni o per prenotare una visita potete contattarci allo +39 0804859887 o al +393934304931 - [email protected] - www.myprojectcasa.it
ascensore
balcone (10mq)
ascensore
balcone (10mq)
Dati principali
| Riferimento | B32 |
| Data annuncio | 09/11/2023 |
| Contratto | Vendita |
| Tipologia | Appartamento |
| Superficie | 100 m2 |
| Locali | 4 (4 camere da letto), 1 bagno |
| Piano | 4 |
Costi
| Prezzo | 130.000 € |
| Prezzo al m2 | 1.300 €/m2 |
Efficienza energetica
| Riscaldamento | Autonomo |
| Classe energetica | G |
| Indice di prestazione energetica (IPE) | 175 kWh/m2 anno |
Planimetrie
Indirizzo e mappa
Via Mario Greco, Martina Franca
Annuncio senza mappa,
prova a chiedere la posizione all'inserzionista
prova a chiedere la posizione all'inserzionista
Calcolo mutuo
Prezzo di vendita:
Anticipo
20,00
Mutuo
80,00
Tasso: -+
Rata: 372 al mese
I risultati sono una stima indicativa basata sui dati inseriti e non costituiscono un’offerta finanziaria.
Inserzionista

My Project Casa
Viale Dei Lecci, 36, Martina Franca
Mostra Telefono
Semeraro Roberto
Mostra Telefono
Chiama
CONTATTA

