Attico Montelupo Fiorentino
€ 288.000Attico in vendita a Montelupo Fiorentino (FI)
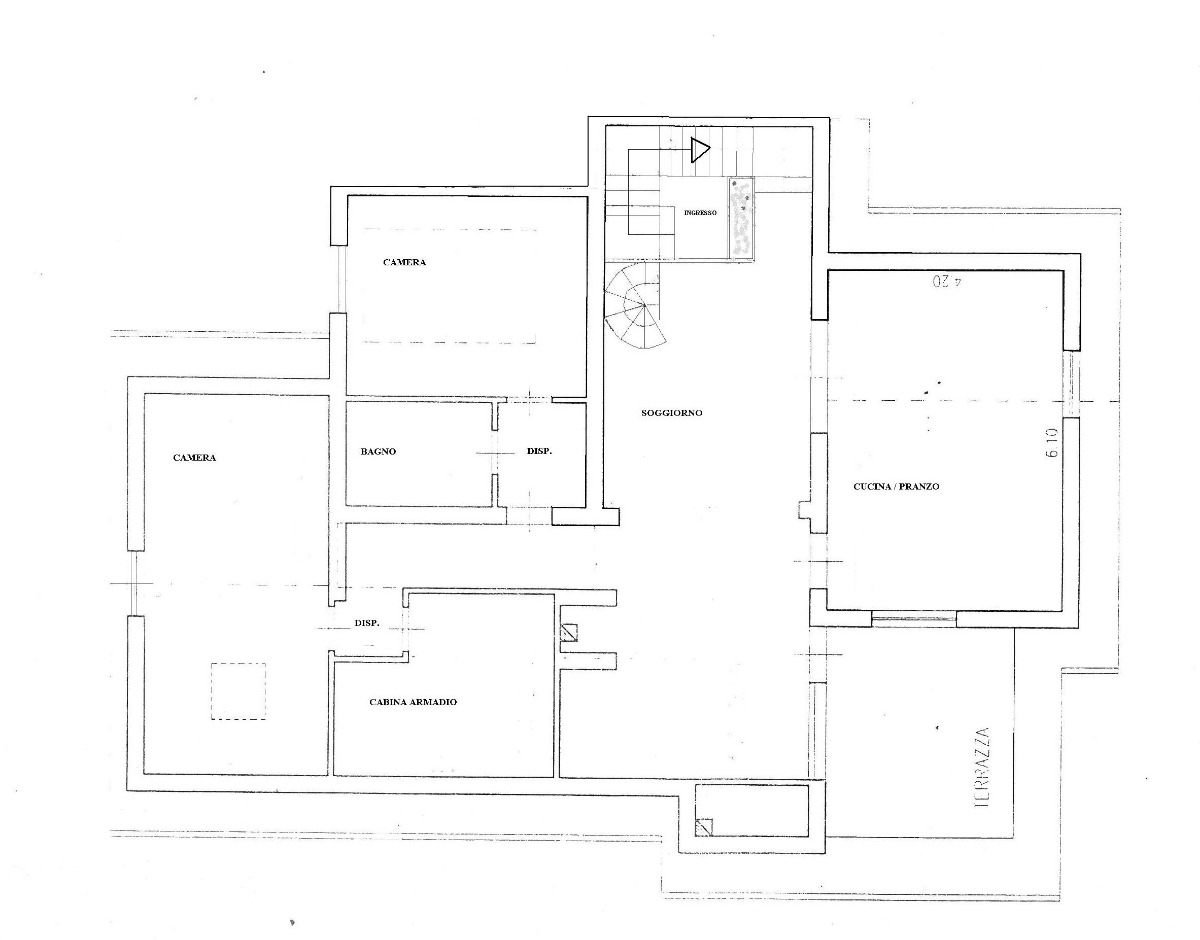
Montelupo F.no , a due passi dal centro e COMODO per TUTTI I SERVIZI - VENDESI ATTICO di 5 vani di 140 mq circa posto al piano secondo (ed ultimo) con INGRESSO INDIPENDENTE, composto da:
ingresso in ampio VANO SCALA ESCLUSIVO, ampio soggiorno CON CAMINO, cucina/pranzo abitabile separata con accesso a TERRAZZA a tasca, disimpegno notte, una camera matrimoniale, una cameretta mansardata, oltre un ripostiglio/guardaroba al piano secondo.
Tramite scala a chiocciola si accede al soppalco abitabile con terza camerina e secondo bagno.
Completa la proprietà un garage di 20 mq. ca.
Appartamento già LIBERO .
Deliberato rifacimento tetto e facciate in corso d’opera . Termosingolo a metano. APE in elaborazione.
Classe energetica: In attesa di certificazione - Rif. 5V232
ingresso in ampio VANO SCALA ESCLUSIVO, ampio soggiorno CON CAMINO, cucina/pranzo abitabile separata con accesso a TERRAZZA a tasca, disimpegno notte, una camera matrimoniale, una cameretta mansardata, oltre un ripostiglio/guardaroba al piano secondo.
Tramite scala a chiocciola si accede al soppalco abitabile con terza camerina e secondo bagno.
Completa la proprietà un garage di 20 mq. ca.
Appartamento già LIBERO .
Deliberato rifacimento tetto e facciate in corso d’opera . Termosingolo a metano. APE in elaborazione.
Classe energetica: In attesa di certificazione - Rif. 5V232
Dati principali
| Riferimento | ID1860011 |
| Data annuncio | 24/10/2023 |
| Contratto | Vendita |
| Tipologia | Attico |
| Superficie | 140 m2 |
| Locali | 5 (3 camere da letto, 2 altro), 2 bagni |
| Piano | 2 di 2 totali |
Costi
| Prezzo | 288.000 € |
| Prezzo al m2 | 2.057 €/m2 |
Efficienza energetica
| Riscaldamento | Legna |
| Classe energetica | Immobile esente da certificazione energetica |
Planimetrie
Indirizzo e mappa
Montelupo Fiorentino
Annuncio senza mappa,
prova a chiedere la posizione all'inserzionista
prova a chiedere la posizione all'inserzionista
Calcolo mutuo
Prezzo di vendita:
Anticipo
20,00
Mutuo
80,00
Tasso: -+
Rata: 824 al mese
I risultati sono una stima indicativa basata sui dati inseriti e non costituiscono un’offerta finanziaria.
Inserzionista
Chiama
CONTATTA


