Casa semi indipendente Via Montecassino, Santhià
€ 78.000Casa semindipendente in vendita
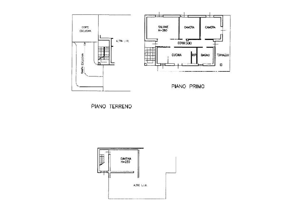
Nella zona residenziale della città, porzione di casa bifamiliare disposta su di un unico livello con cortile privato.
L'abitazione si sviluppa interamente al piano primo, l'ingresso a quest'ultima è tramite un corridoio di generosa metratura che divide in maniera organizzata tutti gli ambienti della casa, procedendo per lo stesso, si accede all'ampio soggiorno con camino a vista, alla cucina abitabile con capiente dispensa, alle due camere da letto, entrambe matrimoniali ed il bagno di generosa metratura con doccia.
Uno dei valori aggiunti di questa soluzione è sicuramente il terrazzo, estremamente comodo e versatile, ideale per concedersi del relax in qualsiasi stagione.
Completano la proprietà il box auto spazioso e la cantina annessa.
L'abitazione si sviluppa interamente al piano primo, l'ingresso a quest'ultima è tramite un corridoio di generosa metratura che divide in maniera organizzata tutti gli ambienti della casa, procedendo per lo stesso, si accede all'ampio soggiorno con camino a vista, alla cucina abitabile con capiente dispensa, alle due camere da letto, entrambe matrimoniali ed il bagno di generosa metratura con doccia.
Uno dei valori aggiunti di questa soluzione è sicuramente il terrazzo, estremamente comodo e versatile, ideale per concedersi del relax in qualsiasi stagione.
Completano la proprietà il box auto spazioso e la cantina annessa.
Dati principali
| Riferimento | 60800840 |
| Data annuncio | 26/09/2023 |
| Contratto | Vendita |
| Tipologia | Casa semi indipendente |
| Superficie | 125 m2 |
| Locali | 4 (4 altro), 1 bagno |
| Piano | 1 di 2 totali |
Costi
| Prezzo | 78.000 € |
| Prezzo al m2 | 624 €/m2 |
Efficienza energetica
| Anno costruzione | 1985 |
| Riscaldamento | Autonomo |
| Tipo Alimentazione Riscaldamento | Metano |
| Classe energetica | E |
| Indice di prestazione energetica (EP GL, NREN) | 231.32 kWh/m3 anno |
Planimetrie
Video
Indirizzo e mappa
Via Montecassino, Santhià
Calcolo mutuo
Prezzo di vendita:
Anticipo
20,00
Mutuo
80,00
Tasso: -+
Rata: 223 al mese
I risultati sono una stima indicativa basata sui dati inseriti e non costituiscono un’offerta finanziaria.
Inserzionista
Chiama
CONTATTA

