Villa via Sferracavallo, Palermo
€ 290.000Rif. 1394 Palermo, Villa Via Sferracavallo mq 413 circa+spaz
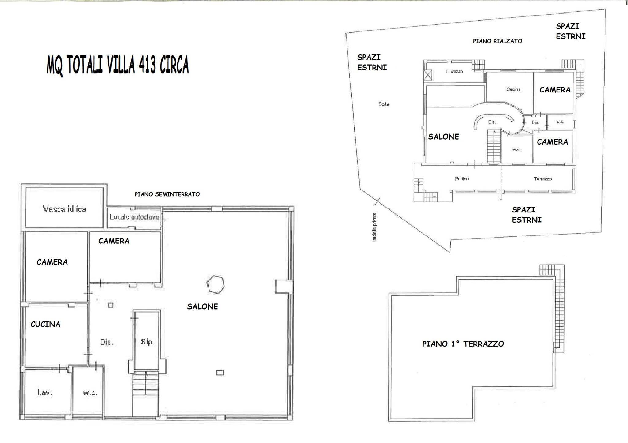
Rif. 1394 - Immobiliare Conigliaro propone in vendita, Palermo, Via Sferracavallo, villa in residence unifamiliare da ristrutturare su due livelli di mq 413 circa +terrazzo soprastante e spazi esterni di mq 500 circa complessivo di sedime. La villa è così composta: Piano seminterrato luminoso composto da: ampio salone triplo, due camere, cucina, lavanderia, servizio; Piano rialzato: ampio portico antistante, ingresso su salone doppio, due camere, cucina, doppi servizi, disimpegno, terrazzo retrostante a livello della cucina: terrazzo soprastante. Classe energetica APE "G", info: 0918675239 - wsp3286434602.
Dati principali
| Riferimento | 1394 |
| Data annuncio | 25/08/2023 |
| Contratto | Vendita |
| Tipologia | Villa |
| Superficie | 413 m2 |
| Locali | più di 5 (4 camere da letto, 2 altro), 3 bagni, cucina abitabile |
| Piano | 3 totali |
| Tipo di costruzione | Media |
| Numero di terrazzi | 1 |
| Numero di balconi | 1 |
| Box auto | Assente |
| Numero posti auto | 4 |
| Arredamento | Assente |
Caratteristiche
Costi
| Prezzo | 290.000 € |
| Prezzo al m2 | 702 €/m2 |
Efficienza energetica
| Anno costruzione | 1980 |
| Stato | Da ristrutturare |
| Riscaldamento | Assente |
| Classe energetica | G |
| Indice di prestazione energetica (IPE) | 175 kWh/m2 anno |
Planimetrie
Indirizzo e mappa
via Sferracavallo, Palermo
Calcolo mutuo
Prezzo di vendita:
Anticipo
20,00
Mutuo
80,00
Tasso: -+
Rata: 829 al mese
I risultati sono una stima indicativa basata sui dati inseriti e non costituiscono un’offerta finanziaria.
Inserzionista

Immobiliare Conigliaro
Via Capri 5, Carini
Mostra Telefono
Chiama
CONTATTA

