

Terreno edificabile Modena
€ 220.000P17 S. DONNINO
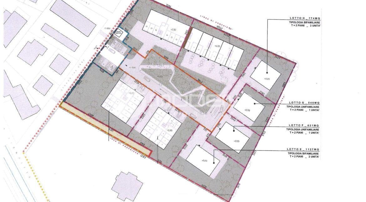
4 lotti di circa 650 mq cadauno con 350 mq di superficie utile, con possibilità edificatoria di villa singola o bifamiliare. A.p.e. in corso di definizione. Vendita del singolo lotto urbanizzato. DA € 220.000 Possibilità del costruito.
Additional Details :
Additional Details :
Dati principali
| Riferimento | P17 |
| Data annuncio | 03/08/2023 |
| Contratto | Vendita |
| Tipologia | Terreno edificabile |
| Superficie | 650 m2 |
Costi
| Prezzo | 220.000 € |
| Prezzo al m2 | 338 €/m2 |
Efficienza energetica
| Classe energetica | Immobile esente da certificazione energetica |
Indirizzo e mappa
Modena
Annuncio senza mappa,
prova a chiedere la posizione all'inserzionista
prova a chiedere la posizione all'inserzionista
Calcolo mutuo
Prezzo di vendita:
Anticipo
20,00
Mutuo
80,00
Tasso: -+
Rata: 629 al mese
I risultati sono una stima indicativa basata sui dati inseriti e non costituiscono un’offerta finanziaria.
Inserzionista

Modena Immobiliare
Via Bellini 3, Modena
Mostra Telefono
Chiama
CONTATTA