Appartamento Piazza Emanuele Pancali, Siracusa
€ 900.000Appartamento vista mare all'ingresso di Ortigia
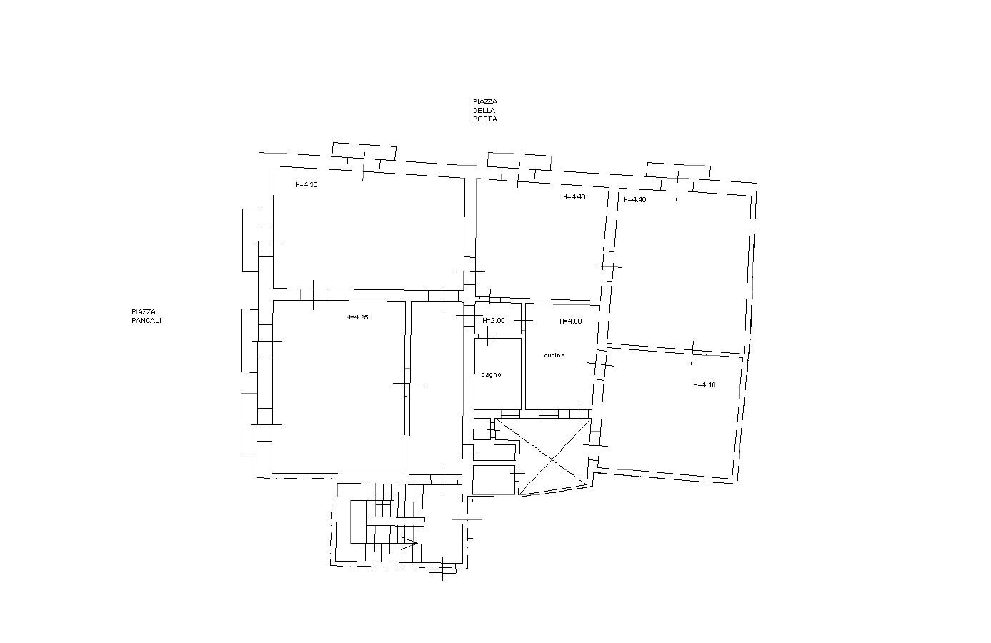
Appartamento 214m2 vista mare all'ingresso di Ortigia al primo piano nobiliare che conserva ancora intatti i caratteri originali e composto da tre camere e due bagni.
Rendiamo il tuo acquisto facile e sicuro.
Assistenza personalizzata durante tutto il processo.
L'elegante appartamento si trova al primo piano di un edificio storico con prospetto in fase di ristrutturazione.
L'appartamento, con accesso da Piazza Pancali, ha doppia esposizione angolare con affaccio da un lato sulla Piazza e dall'altro sulla darsena. E' dotato di ben sei balconi che lo rendono quindi molto luminoso.
Al suo interno si distribuisce su una superficie di circa 214m2 ed è composto da ingresso ampio con bagno, due saloni di cui uno con tetti a cassettoni, cucina con terrazzino interno, tre camere da letto ed altro bagno.
In ogni suo ambiente mantiene ancora le caratteristiche originali dell'epoca di costruzione, tra cui alti soffitti a cassettoni e pavimentazione in seminato alla veneziana nel salone.
In generale ogni camera ha il proprio stile e la pavimentazione varia da stanza in stanza donando unicità a ciascuna di essa.
Questa proprietà è l'abitazione ideale per chi desidera abbandonare la propria automobile, nelle aree parcheggio sottostanti l'immobile, e vivere il clima che si respira all'interno dell'isola di Ortigia avendo tutto a portata di mano. In prossimità dell'appartamento infatti troviamo tutti i negozi e i servizi necessari quali farmacie, botteghe, banche, ufficio postale, bar, ristoranti e tabacchi e il mercato dei prodotti tipici siciliani.
Rendiamo il tuo acquisto facile e sicuro.
Assistenza personalizzata durante tutto il processo.
L'elegante appartamento si trova al primo piano di un edificio storico con prospetto in fase di ristrutturazione.
L'appartamento, con accesso da Piazza Pancali, ha doppia esposizione angolare con affaccio da un lato sulla Piazza e dall'altro sulla darsena. E' dotato di ben sei balconi che lo rendono quindi molto luminoso.
Al suo interno si distribuisce su una superficie di circa 214m2 ed è composto da ingresso ampio con bagno, due saloni di cui uno con tetti a cassettoni, cucina con terrazzino interno, tre camere da letto ed altro bagno.
In ogni suo ambiente mantiene ancora le caratteristiche originali dell'epoca di costruzione, tra cui alti soffitti a cassettoni e pavimentazione in seminato alla veneziana nel salone.
In generale ogni camera ha il proprio stile e la pavimentazione varia da stanza in stanza donando unicità a ciascuna di essa.
Questa proprietà è l'abitazione ideale per chi desidera abbandonare la propria automobile, nelle aree parcheggio sottostanti l'immobile, e vivere il clima che si respira all'interno dell'isola di Ortigia avendo tutto a portata di mano. In prossimità dell'appartamento infatti troviamo tutti i negozi e i servizi necessari quali farmacie, botteghe, banche, ufficio postale, bar, ristoranti e tabacchi e il mercato dei prodotti tipici siciliani.
Dati principali
| Riferimento | IA0634 |
| Data annuncio | 11/07/2023 |
| Contratto | Vendita |
| Tipologia | Appartamento |
| Superficie | 214 m2 |
| Locali | più di 5 (3 camere da letto, 4 altro), 2 bagni, cucina abitabile |
| Piano | 1 di 2 totali |
| Tipo di costruzione | Lusso |
| Occupato | Libero |
| Numero di balconi | 6 |
| Box auto | Assente |
| Arredamento | Assente |
Caratteristiche
Costi
| Prezzo | 900.000 € |
| Prezzo al m2 | 4.206 €/m2 |
Efficienza energetica
| Anno costruzione | 1900 |
| Stato | Buono |
| Aria Condizionata | Autonomo |
| Riscaldamento | Autonomo |
| Tipo Impianto Di Riscaldamento | ad aria |
| Tipo Alimentazione Riscaldamento | Elettrico |
| Infissi esterni | Vetro / Legno |
| Classe energetica | G |
| Indice di prestazione energetica (IPE) | 175 kWh/m2 anno |
Planimetrie
Virtual tour
Video
Indirizzo e mappa
Piazza Emanuele Pancali, Siracusa
Calcolo mutuo
Prezzo di vendita:
Anticipo
20,00
Mutuo
80,00
Tasso: -+
Rata: 2.574 al mese
I risultati sono una stima indicativa basata sui dati inseriti e non costituiscono un’offerta finanziaria.
Inserzionista

Style Real Estate
Via Salvatore Chindemi 20, Siracusa
Mostra Telefono
Mostra Cellulare
Chiama
CONTATTA

