Pizzeria Cervia
€ 159.000
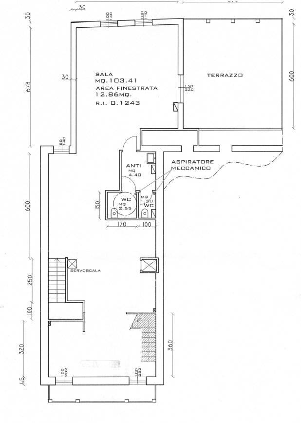
Vendiamo a Cervia, tra le mura del centro storico, in posizione centralissima e prestigiosa con forte passaggio e affluenza, attività ristorativa ottimamente avviata e recensita da un’ampia cerchia di clientela. Il locale fuori dispone di diversi coperti nella suggestiva piazzetta mentre all’interno troviamo sala con angolo-bar, cucina di servizio e bagno; salendo al primo piano troviamo un ampia sala da ricevimento con affaccio su terrazzo ed ulteriore bagno; al secondo piano, nel sottotetto troviamo un appartamento con tre camere da letto. Maggiori informazioni in ufficio. Rif.700
Dati principali
| Riferimento | BRB700 |
| Data annuncio | 10/07/2023 |
| Contratto | Vendita |
| Tipologia | Pizzeria |
| Superficie | 240 m2 |
| Locali | 3 bagni |
Costi
| Prezzo | 159.000 € |
| Prezzo al m2 | 663 €/m2 |
Efficienza energetica
| Classe energetica | Immobile esente da certificazione energetica |
Indirizzo e mappa
Cervia
Calcolo mutuo
Prezzo di vendita:
Anticipo
20,00
Mutuo
80,00
Tasso: -+
Rata: 455 al mese
I risultati sono una stima indicativa basata sui dati inseriti e non costituiscono un’offerta finanziaria.
Inserzionista
Barbieri Immobiliare
V.le Volturno, 27, Cervia
Mostra Telefono
Chiama
CONTATTA

