Quadrilocale Via g. buffa, Castellamonte
€ 133.000Quadrilocale in vendita
Questa soluzione fa parte di un complesso condominiale comoda ai servizi ed alle scuole.
E' al secondo piano ed è servita dall'ascensore.
L'ingresso funge anche da disimpegno per i vari locali.
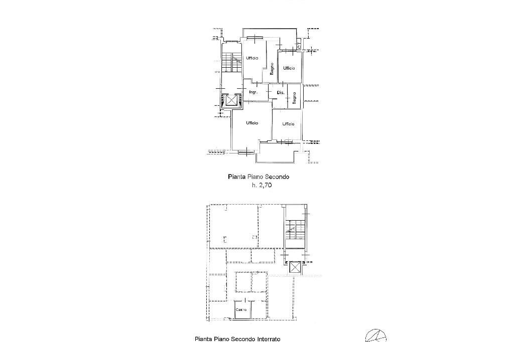
Ad oggi, questo immobile è censito come ufficio, ma con una pratica urbanistico/catastale può essere trasformato in civile abitazione.
I locali sono una cucina abitabile con accesso al balcone, un grande e luminoso salone con uscita sul grande terrazzo.
Le camere da letto sono due, di cui una dotata di parquet.
I bagno sono anch'essi due, uno dotato di vasca ed uno di doccia.
Un balcone ed un terrazzo, già citati in precedenza, completano il piano abitativo.
Nel piano secondo interrato vi è una comoda e pratica cantina.
Al piano primo interrato vi è un'autorimessa molto spaziosa in grado di ospitare due vetture.
Il riscaldamento autonomo, la posizione strategica e la doppia esposizione sono alcuni dei punti forti di questa soluzione.
E' al secondo piano ed è servita dall'ascensore.
L'ingresso funge anche da disimpegno per i vari locali.
Ad oggi, questo immobile è censito come ufficio, ma con una pratica urbanistico/catastale può essere trasformato in civile abitazione.
I locali sono una cucina abitabile con accesso al balcone, un grande e luminoso salone con uscita sul grande terrazzo.
Le camere da letto sono due, di cui una dotata di parquet.
I bagno sono anch'essi due, uno dotato di vasca ed uno di doccia.
Un balcone ed un terrazzo, già citati in precedenza, completano il piano abitativo.
Nel piano secondo interrato vi è una comoda e pratica cantina.
Al piano primo interrato vi è un'autorimessa molto spaziosa in grado di ospitare due vetture.
Il riscaldamento autonomo, la posizione strategica e la doppia esposizione sono alcuni dei punti forti di questa soluzione.
Dati principali
| Riferimento | 60763674 |
| Data annuncio | 16/06/2023 |
| Contratto | Vendita |
| Tipologia | Appartamento |
| Superficie | 130 m2 |
| Locali | 4 (2 camere da letto, 2 altro), 2 bagni |
| Piano | 2 di 5 totali |
Costi
| Prezzo | 133.000 € |
| Prezzo al m2 | 1.023 €/m2 |
| Spese condominiali | € 100,00/mese |
Efficienza energetica
| Anno costruzione | 2005 |
| Riscaldamento | Autonomo |
| Tipo Alimentazione Riscaldamento | Metano |
| Classe energetica | C |
| Indice di prestazione energetica (EP GL, REN) | 26.32 kWh/m3 anno |
| Indice di prestazione energetica (EP GL, NREN) | 213.67 kWh/m3 anno |
Planimetrie
Video
Indirizzo e mappa
Via g. buffa, Castellamonte
Calcolo mutuo
Prezzo di vendita:
Anticipo
20,00
Mutuo
80,00
Tasso: -+
Rata: 380 al mese
I risultati sono una stima indicativa basata sui dati inseriti e non costituiscono un’offerta finanziaria.
Inserzionista
Chiama
CONTATTA

