Attico Via tosarelli villanova, Castenaso
€ 740.000Attico in vendita
Città di Castenaso - RESIDENZA PIAVE - zona Villanova via Tosarelli
RIF. RP C 5.10 - NESSUN COSTO DI MEDIAZIONE - ACQUISTO DIRETTO DA IMPRESA
PROPONIAMO APPARTAMENTI DI NUOVA REALIZZAZIONE NEL PIENO CENTRO DI VILLANOVA
APPARTAMENTI con giardini privati, terrazze e logge in palazzine di prossima costruzione in nuovo complesso edilizio RESIDENZA PIAVE via TOSARELLI.
Il complesso sarà composto da tre vani scala uniti da un'area condominiale accessibile tramite cancello carraio motorizzato con all'interno posti auto privati e un piano interrato per le autorimesse.
Nelle immediate vicinanze asilo nido, scuola materna e primaria, fermata urbana dell'autobus, parchi pubblici con piste ciclo pedonali, tangenziale e autostrada e Extracoop.
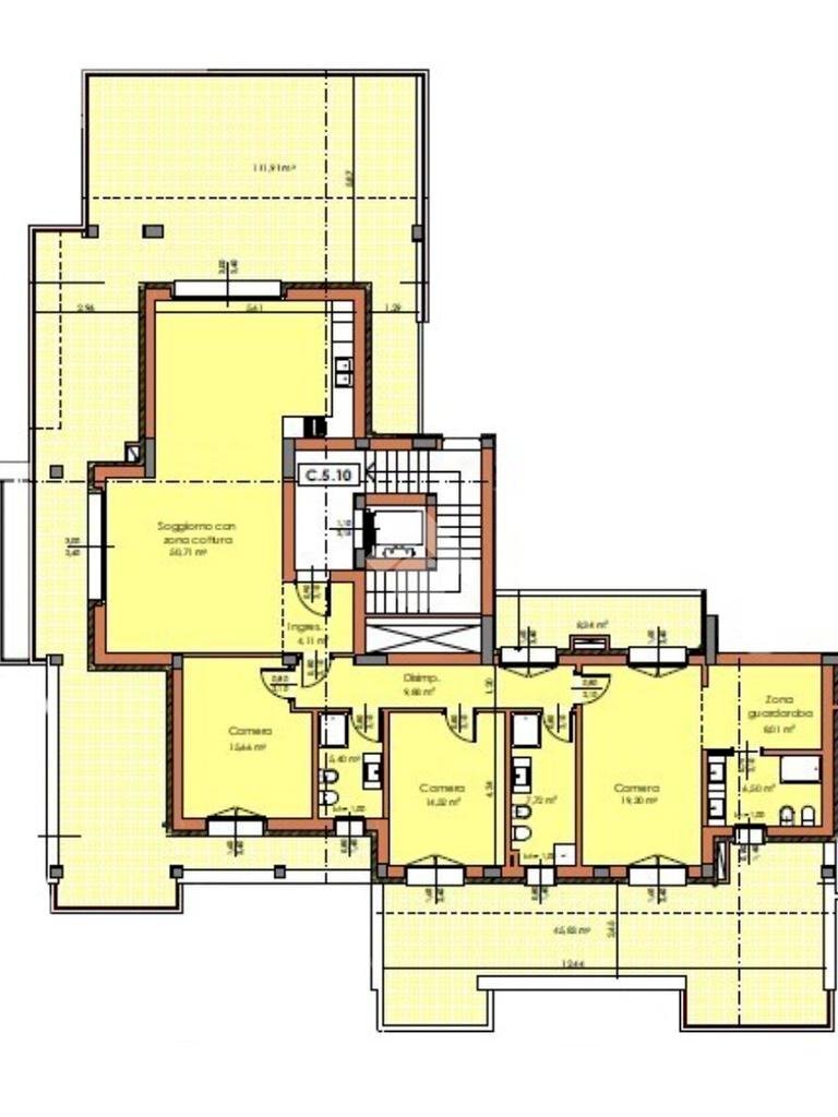
ALLOGGIO C 5.10, ATTICO: Salone con cucina a vista di mq 50 terrazzo abitabile di mq 111 3 camere, 3 bagni, cabina armadio e ulteriore terrazzo di mq 45 .
Possibilità di cantina, garage e posti auto.
OTTIMO CAPITOLATO E FINITURE DI ALTO LIVELLO
L'edificio rispecchia le ultime normative antisismiche e al risparmio energetico, pannelli solari e fotovoltaici, riscaldamento e raffrescamento a pavimento.
La Città di Castenaso dispone di tutti i servizi, è di facile accesso alla tangenziale e alla rete autostradale. Dista pochi km dalla Città Metropolitana di Bologna.
Fissa un appuntamento per visionare questo immobile chiamando allo 051 789544, tramite mail oppure segui le proposte sul nostro sito.
Certificati ANAMA
Ogni agenzia ha un proprio titolare ed è autonoma - Le presenti informazioni non costituiscono elemento contrattuale.
RIF. RP C 5.10 - NESSUN COSTO DI MEDIAZIONE - ACQUISTO DIRETTO DA IMPRESA
PROPONIAMO APPARTAMENTI DI NUOVA REALIZZAZIONE NEL PIENO CENTRO DI VILLANOVA
APPARTAMENTI con giardini privati, terrazze e logge in palazzine di prossima costruzione in nuovo complesso edilizio RESIDENZA PIAVE via TOSARELLI.
Il complesso sarà composto da tre vani scala uniti da un'area condominiale accessibile tramite cancello carraio motorizzato con all'interno posti auto privati e un piano interrato per le autorimesse.
Nelle immediate vicinanze asilo nido, scuola materna e primaria, fermata urbana dell'autobus, parchi pubblici con piste ciclo pedonali, tangenziale e autostrada e Extracoop.
ALLOGGIO C 5.10, ATTICO: Salone con cucina a vista di mq 50 terrazzo abitabile di mq 111 3 camere, 3 bagni, cabina armadio e ulteriore terrazzo di mq 45 .
Possibilità di cantina, garage e posti auto.
OTTIMO CAPITOLATO E FINITURE DI ALTO LIVELLO
L'edificio rispecchia le ultime normative antisismiche e al risparmio energetico, pannelli solari e fotovoltaici, riscaldamento e raffrescamento a pavimento.
La Città di Castenaso dispone di tutti i servizi, è di facile accesso alla tangenziale e alla rete autostradale. Dista pochi km dalla Città Metropolitana di Bologna.
Fissa un appuntamento per visionare questo immobile chiamando allo 051 789544, tramite mail oppure segui le proposte sul nostro sito.
Certificati ANAMA
Ogni agenzia ha un proprio titolare ed è autonoma - Le presenti informazioni non costituiscono elemento contrattuale.
Dati principali
| Riferimento | 60736727 |
| Data annuncio | 21/04/2023 |
| Contratto | Vendita |
| Tipologia | Attico |
| Superficie | 184 m2 |
| Locali | 5 (3 camere da letto, 2 altro), 2 bagni |
| Piano | 5 di 5 totali |
Costi
| Prezzo | 740.000 € |
| Prezzo al m2 | 4.022 €/m2 |
Efficienza energetica
| Anno costruzione | 2023 |
| Riscaldamento | Centralizzato |
| Tipo Alimentazione Riscaldamento | Altro |
| Classe energetica | A4 |
Planimetrie
Video
Indirizzo e mappa
Via tosarelli villanova, Castenaso
Calcolo mutuo
Prezzo di vendita:
Anticipo
20,00
Mutuo
80,00
Tasso: -+
Rata: 2.116 al mese
I risultati sono una stima indicativa basata sui dati inseriti e non costituiscono un’offerta finanziaria.
Inserzionista
Agenzia Tecnocasa Studio Castenaso Sas
Via Nasica, 55, Castenaso
Mostra Telefono
Chiama
CONTATTA

