Box via pavia, Rivoli
€ 30.000Box / posti auto in vendita
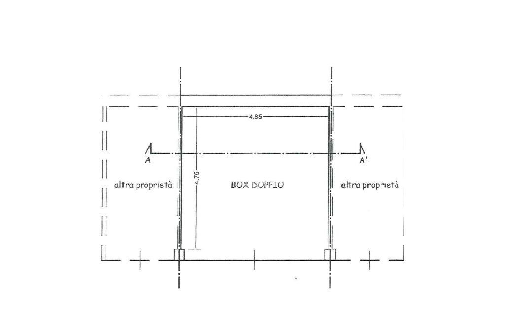
Via Pavia, in zona centrale, comoda a qualsiasi tipo di servizio primario e con poco parcheggio, vicino alla futura fermata della auto doppio in larghezza di circa 25 Mq con serranda elettrica, con comoda area di manovra e rampa di accesso, libero sin da subito. Grazie alla sua notevole metratura è frazionabile e ci stanno comodamente due macchine di qualsiasi portata. Informazioni in ufficio o telefoniche per appuntamenti.
CERCHI LAVORO? SIAMO ALLA RICERCA DI COLLABORATORI!!!
TI OFFRIAMO UN AMBIENTE GIOVANILE CHE TI GARANTISCA REALI POSSIBILITA' DI CRESCITA PERSONALE ED ECONOMICA.
CERCHI LAVORO? SIAMO ALLA RICERCA DI COLLABORATORI!!!
TI OFFRIAMO UN AMBIENTE GIOVANILE CHE TI GARANTISCA REALI POSSIBILITA' DI CRESCITA PERSONALE ED ECONOMICA.
Dati principali
| Riferimento | 40087670 |
| Data annuncio | 23/03/2023 |
| Contratto | Vendita |
| Tipologia | Box |
| Superficie | 25 m2 |
| Locali | 1 (1 altro) |
Costi
| Prezzo | 30.000 € |
| Prezzo al m2 | 1.200 €/m2 |
| Spese condominiali | € 10,00/mese |
Efficienza energetica
| Anno costruzione | 1967 |
| Riscaldamento | Assente |
| Classe energetica | Immobile esente da certificazione energetica |
Planimetrie
Video
Indirizzo e mappa
via pavia, Rivoli
Calcolo mutuo
Prezzo di vendita:
Anticipo
20,00
Mutuo
80,00
Tasso: -+
Rata: 86 al mese
I risultati sono una stima indicativa basata sui dati inseriti e non costituiscono un’offerta finanziaria.
Inserzionista
Chiama
CONTATTA

