Casa indipendente Via Lametta, Soliera
€ 168.000Casa indipendente in vendita
Limidi - Rustico con 2500 mq di giardino
[Prima immagine dimostrativa realizzata con AI]
Situato nella tranquilla campagna che separa Limidi e Carpi, proponiamo in vendita un rustico con bassocomodo, caratterizzato dai tratti distintivi delle vecchie case coloniche, come la porta morta e i volti nel soffitto, elementi che conferiscono un fascino unico all'immobile.
L’abitazione è circondata da un ampio giardino privato di circa 2500 mq e offre numerose possibilità di ristrutturazione. Pur necessitando di interventi di ristrutturazione, si presta anche a una demolizione e ricostruzione ex novo per realizzare una soluzione moderna e personalizzata.
Per tutelare la privacy della nostra clientela, l'indirizzo indicato nell'annuncio potrebbe non essere l'esatta ubicazione dell'immobile.
Per informazioni o per fissare una visita: 059.850446 (anche WhatsApp).
[Prima immagine dimostrativa realizzata con AI]
Situato nella tranquilla campagna che separa Limidi e Carpi, proponiamo in vendita un rustico con bassocomodo, caratterizzato dai tratti distintivi delle vecchie case coloniche, come la porta morta e i volti nel soffitto, elementi che conferiscono un fascino unico all'immobile.
L’abitazione è circondata da un ampio giardino privato di circa 2500 mq e offre numerose possibilità di ristrutturazione. Pur necessitando di interventi di ristrutturazione, si presta anche a una demolizione e ricostruzione ex novo per realizzare una soluzione moderna e personalizzata.
Per tutelare la privacy della nostra clientela, l'indirizzo indicato nell'annuncio potrebbe non essere l'esatta ubicazione dell'immobile.
Per informazioni o per fissare una visita: 059.850446 (anche WhatsApp).
Dati principali
| Riferimento | 40241240 |
| Data annuncio | 22/03/2023 |
| Contratto | Vendita |
| Tipologia | Casa indipendente |
| Superficie | 360 m2 |
| Locali | più di 5 (6 altro), 1 bagno |
| Piano | 2 di 2 totali |
Costi
| Prezzo | 168.000 € |
| Prezzo al m2 | 467 €/m2 |
Efficienza energetica
| Anno costruzione | 1950 |
| Riscaldamento | Autonomo |
| Tipo Alimentazione Riscaldamento | Metano |
| Classe energetica | G |
| Indice di prestazione energetica (EP GL, REN) | 500 kWh/m3 anno |
| Indice di prestazione energetica (EP GL, NREN) | 500 kWh/m3 anno |
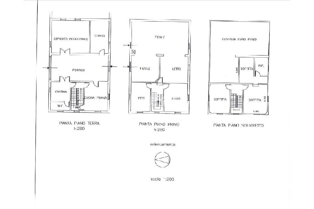
Planimetrie
Video
Indirizzo e mappa
Via Lametta, Soliera
Calcolo mutuo
Prezzo di vendita:
Anticipo
20,00
Mutuo
80,00
Tasso: -+
Rata: 480 al mese
I risultati sono una stima indicativa basata sui dati inseriti e non costituiscono un’offerta finanziaria.
Inserzionista
Agenzia Tecnocasa Agenzia Soliera Srl
Via Roma, 277, Soliera
Mostra Telefono
Chiama
CONTATTA

