Locale Commerciale via Ugo Lambertini, 1, Imola
€ 430.000ADIACENTE CENTRO LOCALE COMMERCIALE DI 280 CON PARCHEGGI
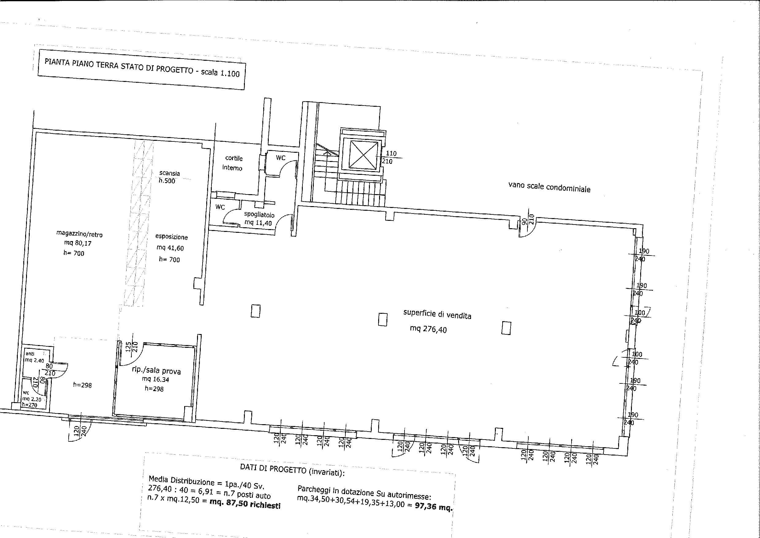
ADIACENTE CENTRO VIA LAMBERTINI : in zona di passaggio affittasi locale commerciale al dettaglio, composto al piano terra da circa 315 mq. con cinque vetrine fronte strada , due servizi, posto auto privato . Impianti autonomi a norma di Legge, impianto di condizionamento e raffrescamento. Ottime finiture, già pronto per essere utilizzato da subito. Ottimo anche per attività di poliambulatorio. Rif 89 vendita /fronte
Dati principali
| Riferimento | 89 Vendita/Fronte |
| Data annuncio | 20/03/2023 |
| Contratto | Vendita |
| Tipologia | Locale Commerciale |
| Superficie | 325 m2 |
| Locali | 2 bagni |
| Piano | Su più livelli, 1 totali |
| Numero box | 1 |
| Box auto | Doppio |
| Numero posti auto | 1 |
| Uso immobile | Commerciale |
| Numero locali | 2 |
Caratteristiche
Costi
| Prezzo | 430.000 € |
| Prezzo al m2 | 1.323 €/m2 |
| Spese condominiali | € 50,00/mese |
Efficienza energetica
| Anno costruzione | 2000 |
| Stato | Ottimo |
| Aria Condizionata | Autonomo |
| Riscaldamento | Autonomo |
| Tipo Impianto Di Riscaldamento | ad aria |
| Tipo Alimentazione Riscaldamento | Pompa di calore/Aria |
| Classe energetica | D |
| Indice di prestazione energetica (IPE) | 39.37 kWh/m2 anno |
Planimetrie
Indirizzo e mappa
via Ugo Lambertini, 1, Imola
Calcolo mutuo
Prezzo di vendita:
Anticipo
20,00
Mutuo
80,00
Tasso: -+
Rata: 1.230 al mese
I risultati sono una stima indicativa basata sui dati inseriti e non costituiscono un’offerta finanziaria.
Inserzionista

Agenzia Immobiliare Calamosca
Via Paolo Galeati 27, Imola
Mostra Telefono
Mostra Cellulare
Chiama
CONTATTA

